Retour à la liste
Photos

A propos de

Ref.2029892

Maison de ville
9 pièce(s)
5 chambre(s)
175m2

Iad France - Nancy Douchet vous propose : Belle maison bourgeoise à rénover à Saint-Genès.

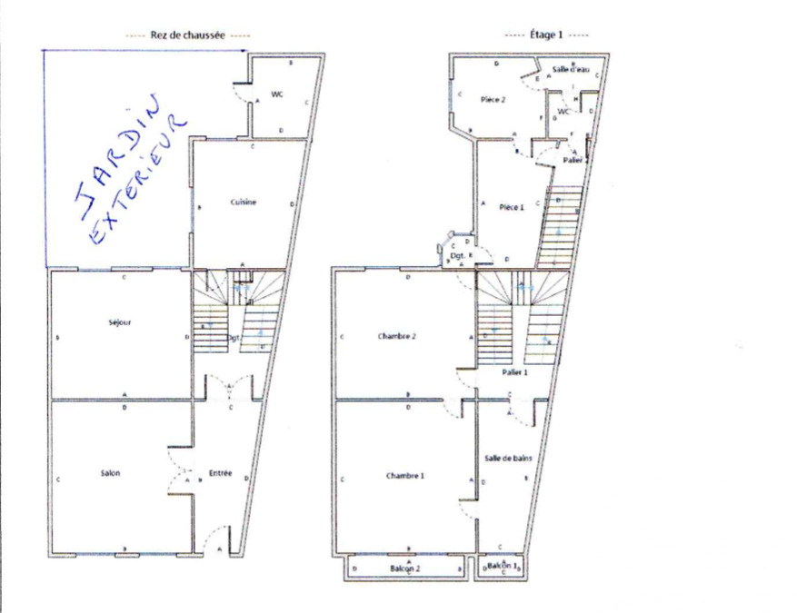
Idéalement située dans le très recherché quartier Saint-Genès, d'une surface habitable de 175 m² sur trois niveaux offre un fort potentiel après rénovation. Un jardin de 50 m² et une cave double saine de 28 m² complètent le bien.

Le rez-de-chaussée comprend une entrée, un salon, une salle à manger, une cuisine, une buanderie et un wc, le tout donnant sur le jardin.
Le 1er étage comprend deux grandes chambres et deux petites chambres, une salle de bains, deux salles d'eau et deux wc.
Le 2nd étage comprend trois chambres (bureaux), deux salles d'eau et un grenier à aménager. Possibilité d'agrandir deux chambres sur le grenier et de créer une salle d'eau supplémentaire.

La toiture a été refaite en 2024.
Rénovation complète à prévoir le reste de la maison avec un gros potentiel pour l'imaginer à votre goût.
Travaux de rénovation énergétique chiffrés (me contacter pour plus de précision).

Possibilité d'obtenir une place de stationnement attitrée proche de la maison.

Contactez-moi rapidement pour une visite.

Honoraires d'agence à la charge du vendeur.
Information d'affichage énergétique sur ce bien : classe ENERGIE E indice 261 et classe CLIMAT E indice 51. Les informations sur les risques auxquels ce bien est exposé, y compris l'obligation légale de débroussaillement, sont disponibles sur le site Géorisques : http://www.georisques.gouv.fr.
La présente annonce immobilière a été rédigée sous la responsabilité éditoriale de Mme Nancy Douchet mandataire indépendant en immobilier (sans détention de fonds), agent commercial de la SAS I@D France immatriculé au RSAC de Bordeaux sous le numéro 949852032, titulaire de la carte de démarchage immobilier pour le compte de la société I@D France SAS. (gedeon_6727_32827413)

Partager

* Honoraires à la charge du vendeur

Caractéristiques


Prestations intérieures
  • Pièce(s) : 9
  • Chambre(s) : 5
  • Salle(s) de bain(s) : 1
  • Chauffage : gaz
Prestations extérieures
  • Accès handicapé : Non
  • Ascenseur : Non
  • Jardin : 50 m2
  • Digicode : Non
  • Parking : 1
  • Balcon : 1
  • Surface : m2
Informations sur le lot
  • Localisation : Bordeaux
  • Année de construction : 1850
  • Aucune procédure n'est en cours

Géorisques

Les informations sur les risques auxquels ce bien est exposé sont disponibles sur le site Géorisques. https://www.georisques.gouv.fr

Diagnostic de performance énergétique


  • Diagnostics de performance énergétiques (DPE)
    E
    Consommation (énergie primaire)
    261
    kWh/m².an
    Emissions (énergie primaire)
    51
    kWh/m².an
    A B C D E F G logement extrêmement performant logement extrêmement peu performant
  • Émissions de gaz à effet de serre (GES)
    E
    Émissions GES (gaz à effet de serre)
    51
    kg CO2/m².an
    A B C D E F G logement peu émetteur de CO2 logement très émetteur de CO2
  • Date du DPE : 09/05/2025
    Montant estimé des dépenses annuelles d’énergie pour un usage standard entre 3830.00€ et 5240.00€ par an. Prix moyens des énergies indexés en 23/04/2026 (abonnement compris)

    Cette annonce immobilière est rédigée sous la responsabilité de l’annonceur.

    Calculez vos mensualités


    calendar Created with Sketch.
    Vos mensualités
    Taux d'assurance non inclus
    ** Cette simulation est donnée à titre indicatif et n’a pas de valeur contractuelle. La mensualité est calculée sans assurance. Elle ne saurait être assimilée à une proposition commerciale. Elle est calculée sur des hypothèses en se basant sur les taux moyens proposés par les partenaires bancaires de CRESERFI
    calendar Created with Sketch.
    Vos mensualités
    Taux d'assurance non inclus
    ** Cette simulation est donnée à titre indicatif et n’a pas de valeur contractuelle. La mensualité est calculée sans assurance. Elle ne saurait être assimilée à une proposition commerciale. Elle est calculée sur des hypothèses en se basant sur les taux moyens proposés par les partenaires bancaires de CRESERFI
    695 000 €
    Maison de ville 175m2 à Bordeaux
    En vente
    Achetez en toute confiance

    Maison de ville 175m2Bordeaux

    vente
    695 000 €*
    Publiée le 11/04/2026

    I@D FRANCE
  • Afficher le téléphone
  • ...

    Vous ne trouvez pas votre bonheur ?

    Confiez nous votre recherche
    En poursuivant votre navigation sur ce site, vous acceptez l'utilisation de cookies afin de vous proposer des services adaptés à votre profil. En savoir plus