- 1
- 1
- 50
A propos de
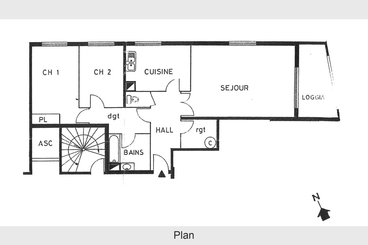
Iad France - Guillaume Gibeaux vous propose : Situé dans un immeuble de standing, sur l'avenue de Saxe, cet appartement va offrir tout le confort moderne attendu dans un tel lieu. 140 m² entiÚrement rénovés, grande piÚce de vie ouverte sur la cuisine, 4 chambres dont minimum 3 avec salle d'eau et 2 avec dressing, 2 W. C. séparés, 1 balcon et une grande cave. Baigné de lumiÚre grâce à ses grandes ouvertures en bois double vitrage, cet appartement en étage élevé assurera à la fois une vie citadine et un sentiment de calme et de sérénité. Situé à proximité immédiate des transports en commun (métro B & D, arrêt Saxe-Gambetta), des bus, des supermarchés, des restaurants, des bars & des commerces de proximité. Immeuble sécurisé avec présence d'une gardienne. Garage à vélos dans la copropriété. Ici, vous avez l'opportunité d'acheter l'appartement dans son état actuel (sans rénovations) et un pack travaux en supplément à 140 000 €. Le pack travaux comprend les plans réalisés par l'architecte, les matériaux, les huisseries bois double vitrage, la main-d'OEuvre et le suivi de chantier, réalisé par des professionnels ayant déjà fait leurs preuves. Les plans et les devis ont déjà été réalisés mais peuvent être modifiés, à votre demande. Informations supplémentaires sur simple appel. La presente annonce immobiliere vise 2 lots situés dans une copropriété de 61 lots au total et ne faisant l'objet d'aucune procédure en cours citée à l'article L. 721-1 du code de la construction et de l'habitation. Montant moyen mensuel de charges déclaré par le vendeur : 373.33€ par mois (soit 4480 € annuel). Honoraires d'agence à la charge du vendeur. Information d'affichage énergétique sur ce bien : classe ENERGIE D indice 237 et classe CLIMAT D indice 43. Les informations sur les risques auxquels ce bien est exposé, y compris l'obligation légale de débroussaillement, sont disponibles sur le site Géorisques : http://www.georisques.gouv.fr.La présente annonce immobiliÚre a été rédigée sous la responsabilité éditoriale de M Guillaume Gibeaux mandataire indépendant en immobilier (sans détention de fonds), agent commercial de la SAS I@D France immatriculé au RSAC de LYON sous le numéro 904153798, titulaire de la carte de démarchage immobilier pour le compte de la société I@D France SAS. (gedeon_6727_32304500)
* Honoraires à la charge du vendeur
Caractéristiques
Prestations intérieures
- Pièce(s) : 5
- Chambre(s) : 4
- Chauffage : collectif gaz radiateur
Prestations extérieures
- Accès handicapé : Non
- Ascenseur : Oui
- Digicode : Non
- Balcon : 1
- Surface : m2
Informations sur le lot
- Localisation : Lyon 3eme Arrondissement
- Année de construction : 1953
- Copropriété : Oui
- Nombre de lots : 61
- Montant annuel quote-part budget prévisionnel : 4480€
- Aucune procédure n'est en cours
Géorisques
Les informations sur les risques auxquels ce bien est exposé sont disponibles sur le site Géorisques. https://www.georisques.gouv.frDiagnostic de performance énergétique
Diagnostics de performance énergétiques (DPE)
kWh/m².an
kWh/m².an
Émissions de gaz à effet de serre (GES)
kg CO2/m².an
Cette annonce immobilière est rédigée sous la responsabilité de l’annonceur.
Biens immobiliers similaires
Calculez vos mensualités
Vos mensualités
Appartement 140m2Lyon 3eme Arrondissement
IAD FRANCE