Retour à la liste
Nouveau depuis 3 jours
Photos

A propos de

Ref.2011421

Appartement
2 pièce(s)
1 chambre(s)
43m2

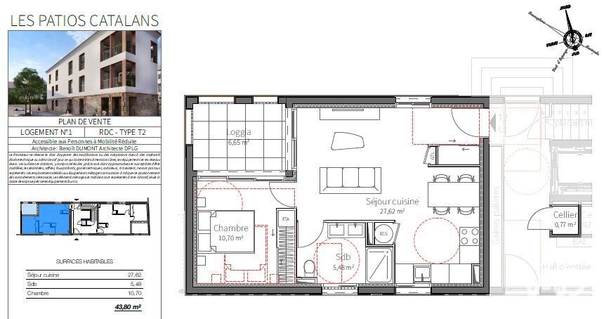
Iad France - Céline Pollièvre (06 16 67 11 75) vous propose : Au centre du village d'Argelès sur mer mais dans une impasse, à l'écart de l'agitation, cet immeuble en R + 2 avec ascenseur et parkings privatifs, offre 6 logements neufs. Au rez-de-chaussée cet appartement traversant de 2 pièces avec une loggia orientée au nord est composé d'un salon de 28 m² environ avec coin cuisine équipée, une chambre avec rangements de 11 m² environ et une salle d'eau avec wc de 5,70 m² environ. Un cellier et un parking sécurisé complète ce bien. Les normes RE2020 induisent un confort thermique et phonique renforcés ainsi qu'une faible consommation énergétique (classe A).Frais de notaire réduits, logement accessible aux personnes à mobilité réduite, livraison début 2027. Que ce soit pour une résidence principale, secondaire ou pour un investissement locatif cet appartement lumineux au cOEur d'un village recherché des Pyrénées-Orientales, ravira ceux qui cherchent à allier confort, calme et proximité des commodités et des plages. Plus que 3 lots disponibles sur 6. Avis de valeur offert sur demande. Honoraires d'agence à la charge du vendeur. Bien non soumis au DPE. Les informations sur les risques auxquels ce bien est exposé sont disponibles sur le site Géorisques : www.georisques.gouv.fr. La présente annonce immobilière a été rédigée sous la responsabilité éditoriale de Mlle Céline Pollièvre EI (ID 92582), mandataire indépendant en immobilier (sans détention de fonds), agent commercial de la SAS I@D France immatriculé au RSAC de PERPIGNAN sous le numéro 842929192, titulaire de la carte de démarchage immobilier pour le compte de la société I@D France SAS. Retrouvez tous nos biens sur notre site internet. www.iadfrance.fr. (gedeon_6727_32753223)

Partager

* Honoraires à la charge du vendeur

Caractéristiques


Prestations intérieures
  • Pièce(s) : 2
  • Chambre(s) : 1
Prestations extérieures
  • Accès handicapé : Non
  • Ascenseur : Oui
  • Digicode : Non
  • Parking : 1
  • Terrasse : Oui
Informations sur le lot
  • Localisation : Argelès-sur-Mer
  • Année de construction : 2026
  • Aucune procédure n'est en cours

Géorisques

Les informations sur les risques auxquels ce bien est exposé sont disponibles sur le site Géorisques. https://www.georisques.gouv.fr

Diagnostic de performance énergétique


  • Non soumis au DPE

  • Information non communiquée par l'annonceur

    Cette annonce immobilière est rédigée sous la responsabilité de l’annonceur.

    Calculez vos mensualités


    calendar Created with Sketch.
    Vos mensualités
    Taux d'assurance non inclus
    ** Cette simulation est donnée à titre indicatif et n’a pas de valeur contractuelle. La mensualité est calculée sans assurance. Elle ne saurait être assimilée à une proposition commerciale. Elle est calculée sur des hypothèses en se basant sur les taux moyens proposés par les partenaires bancaires de CRESERFI
    calendar Created with Sketch.
    Vos mensualités
    Taux d'assurance non inclus
    ** Cette simulation est donnée à titre indicatif et n’a pas de valeur contractuelle. La mensualité est calculée sans assurance. Elle ne saurait être assimilée à une proposition commerciale. Elle est calculée sur des hypothèses en se basant sur les taux moyens proposés par les partenaires bancaires de CRESERFI
    215 000 €
    Appartement 43m2 à Argelès-sur-Mer
    En vente
    Achetez en toute confiance

    Appartement 43m2Argelès-sur-Mer

    vente
    215 000 €*
    Publiée le 11/04/2026

    IAD FRANCE
  • Afficher le téléphone
  • ...

    Vous ne trouvez pas votre bonheur ?

    Confiez nous votre recherche
    En poursuivant votre navigation sur ce site, vous acceptez l'utilisation de cookies afin de vous proposer des services adaptés à votre profil. En savoir plus