Retour à la liste
Exclusivité
Photos
Carte

CSF propose cet appartement de 5 pièces à Vénissieux au prix de 299 000 € HAI. Découvrez les caractéristiques complètes de ce bien et contactez-nous pour une visite.

A propos de

Ref.198570

Appartement
5 pièce(s)
4 chambre(s)
126m2

GRAND PARILLY A VENISSIEUX - T5 EN DUPLEX - 126 M2 - APPARTEMENT D'EXCEPTION AVEC BALCONS - GARAGE - ETAGE ELEVE
Efficity, l'agence qui estime votre bien en ligne, vous propose ce magnifique appartement de 126 m2 (99 m2 habitables, 27 m2 de balcons) situé dans un environnement de standing récent à Vénissieux, avec un cadre de vie unique et une vue dégagée. Copropriété fermée et sécurisée.
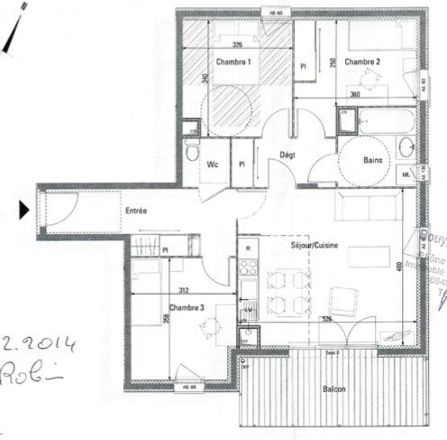
Niché aux 5e et 6e étages, avec ascenseur, dans un immeuble récent installé dans quartier paisible et recherché, cet appartement de 5 pièces avec 4 chambres saura vous séduire par son excellent état général, ses garanties décennales et ses prestations de qualité.
Dès l'entrée, un hall avec placard équipé vous accueille ; il fait face à la buanderie avec toilettes. Puis vous entrez dans l'espace de vie lumineux et traversant avec salon et cuisine de 30 m2 qui donne accès au premier balcon (exposé à l'ouest).
La suite parentale de 16 m2 jouxte le salon. Elle comprend un placard, une salle de bains et rejoint le premier balcon.
Depuis le hall, un escalier vous mène à l'étage où trois chambres de 9, 12 et 15 m2 et une salle d'eau se placent autour du couloir. Deux balcons agrémentent cet espace nuit.
La construction récente a été pensée pour vivre en mode apaisé et bienveillant : un garage à vélos, une cuisine collective qui favorise la convivialité et le vivre ensemble, un jardin partagé, un espace de co-working, une chambre d'hôtes… de nombreux atouts qui créent une valeur ajoutée rare à ce bien d'exception.
Une place de stationnement intérieur est incluse pour un confort supplémentaire et une sérénité au quotidien.
Le bien est vendu avec un bail réel solidaire (secteur B1) ; la taxe foncière est allégée.
L'appartement est proche des transports en commun (Bellecour est à 20mn), écoles, nombreux commerces et accès de circulation.
Bien disponible été 2026
Livré sans cuisine
Les informations sur les risques auxquels ce bien est exposé sont disponibles sur le site Georisque : georisques. gouv. fr
Christel Fèvre - EI - est Agent Commercial mandataire en immobilier, immatriculé au Registre Spécial des Agents Commerciaux du Tribunal de Commerce de Lyon sous le n°834063620.
Siège social du mandant : effiCity, 48 avenue de Villiers - 75017 PARIS - Société par Actions Simplifiée, société au capital de 132 373,05 euros, immatriculée au RCS Paris 497 617 746 et titulaire de la Carte professionnelle CPI 7501 2015 000 002 025 - CCI Paris IDF - Caisse de Garantie : GALIAN Assurances 89 rue de la Boétie 75008 Paris

Partager

* 284 100 € honoraires exclus - Honoraires maximums de 5.24 % TTC à la charge de l'acquéreur

Caractéristiques


Prestations intérieures
Surface habitable : 126 m2
Pièce(s) : 5
Chambre(s) : 4
Salle(s) de bain(s) : 1
WC : 1
Prestations extérieures
Accès handicapé : 1
Ascenseur : Oui
Balcon : 1
Informations sur le lot
Localisation : Vénissieux
Année de construction : 2025
Copropriété : Oui
Nombre de lots : 60
Quote-part budget prévisionnel annuel : 1500 €

Géorisques

Les informations sur les risques auxquels ce bien est exposé sont disponibles sur le site Géorisques. https://www.georisques.gouv.fr

Diagnostic de performance énergétique


  • Non soumis au DPE

  • Information non communiquée par l'annonceur

    Cette annonce immobilière est rédigée sous la responsabilité de l’annonceur.

    Calculez vos mensualités


    calendar Created with Sketch.
    Vos mensualités
    Taux d'assurance non inclus
    ** Cette simulation est donnée à titre indicatif et n’a pas de valeur contractuelle. La mensualité est calculée sans assurance. Elle ne saurait être assimilée à une proposition commerciale. Elle est calculée sur des hypothèses en se basant sur les taux moyens proposés par les partenaires bancaires de CRESERFI
    calendar Created with Sketch.
    Vos mensualités
    Taux d'assurance non inclus
    ** Cette simulation est donnée à titre indicatif et n’a pas de valeur contractuelle. La mensualité est calculée sans assurance. Elle ne saurait être assimilée à une proposition commerciale. Elle est calculée sur des hypothèses en se basant sur les taux moyens proposés par les partenaires bancaires de CRESERFI
    299 000 €
    Appartement 126m2 à Vénissieux
    En vente
    Achetez en toute confiance

    Appartement 126m2Vénissieux

    vente
    299 000 €*
    Publiée le 03/03/2026

    RESEAU EFFICITY
  • Afficher le téléphone
  • Service estimation

    Vous ne trouvez pas votre bonheur ?

    Confiez nous votre recherche
    En poursuivant votre navigation sur ce site, vous acceptez l'utilisation de cookies afin de vous proposer des services adaptés à votre profil. En savoir plus