Retour à la liste
Exclusivité
Photos
Carte

A propos de

Ref.1995396

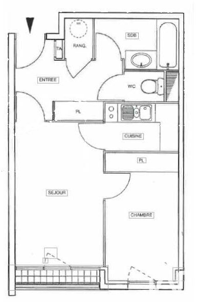
Appartement
2 pièce(s)
1 chambre(s)
43m2

Iad France - Yongcheng Zhan vous propose : . (gedeon_6727_32552733)

Partager

* Honoraires à la charge du vendeur

Caractéristiques


Prestations intérieures
  • Pièce(s) : 2
  • Chambre(s) : 1
  • Chauffage : collectif gaz radiateur
Prestations extérieures
  • Accès handicapé : Non
  • Ascenseur : Oui
  • Digicode : Non
Informations sur le lot
  • Localisation : Pantin
  • Année de construction : 1973
  • Copropriété : Oui
  • Nombre de lots : 489
  • Montant annuel quote-part budget prévisionnel : 2988€
  • Aucune procédure n'est en cours

Géorisques

Les informations sur les risques auxquels ce bien est exposé sont disponibles sur le site Géorisques. https://www.georisques.gouv.fr

Diagnostic de performance énergétique


  • Diagnostics de performance énergétiques (DPE)
    D
    Consommation (énergie primaire)
    166
    kWh/m².an
    Emissions (énergie primaire)
    35
    kWh/m².an
    A B C D E F G logement extrêmement performant logement extrêmement peu performant
  • Émissions de gaz à effet de serre (GES)
    D
    Émissions GES (gaz à effet de serre)
    35
    kg CO2/m².an
    A B C D E F G logement peu émetteur de CO2 logement très émetteur de CO2
  • Date du DPE : 28/10/2025
    Montant estimé des dépenses annuelles d’énergie pour un usage standard entre € et € par an. Prix moyens des énergies indexés en 24/03/2026 (abonnement compris)

    Cette annonce immobilière est rédigée sous la responsabilité de l’annonceur.

    Calculez vos mensualités


    calendar Created with Sketch.
    Vos mensualités
    Taux d'assurance non inclus
    ** Cette simulation est donnée à titre indicatif et n’a pas de valeur contractuelle. La mensualité est calculée sans assurance. Elle ne saurait être assimilée à une proposition commerciale. Elle est calculée sur des hypothèses en se basant sur les taux moyens proposés par les partenaires bancaires de CRESERFI
    calendar Created with Sketch.
    Vos mensualités
    Taux d'assurance non inclus
    ** Cette simulation est donnée à titre indicatif et n’a pas de valeur contractuelle. La mensualité est calculée sans assurance. Elle ne saurait être assimilée à une proposition commerciale. Elle est calculée sur des hypothèses en se basant sur les taux moyens proposés par les partenaires bancaires de CRESERFI
    240 000 €
    Appartement 43m2 à Pantin
    En vente
    Achetez en toute confiance

    Appartement 43m2Pantin

    vente
    240 000 €*
    Publiée le 01/02/2026

    IAD FRANCE
  • Afficher le téléphone
  • ...

    Vous ne trouvez pas votre bonheur ?

    Confiez nous votre recherche
    En poursuivant votre navigation sur ce site, vous acceptez l'utilisation de cookies afin de vous proposer des services adaptés à votre profil. En savoir plus