Retour à la liste
Exclusivité
Photos
Carte

A propos de

Ref.94-22-003662_

Appartement
4 pièce(s)
3 chambre(s)
80m2

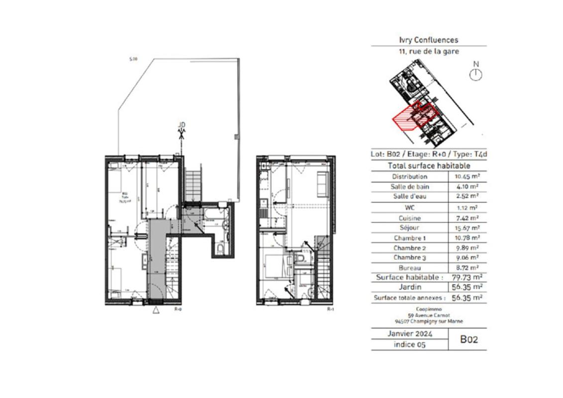
À saisir vite ! COOPIMMO VEND à YVRY SUR SEINE (94200) au 11 rue de la Gare un bel appartement 4 pièces de 79.73 m² en rez-de-jardin. Réf. 94-22-003662. Lot B02.

À deux pas du centre d'Ivry et à 10 minutes de Paris (RER C – Saint Michel Notre-Dame) dans un quartier calme et verdoyant à proximité immédiate de deux parcs, des commerces, et des écoles. Il se compose de 3 chambres, un bureau, un séjour de 15,67 m², une cuisine séparée de 7,4 m², une salle de bains, une salle d'eau, un WC indépendant, et un grand jardin privatif de 56,35 m², idéal pour profiter d'un espace extérieur en ville.

Atouts principaux :
- Au sein d'une petite copropriété de 16 logements
- À proximité des commerces et espaces verts
- Aux portes de Paris (à 2 min du RER C)

Contactez-nous dès maintenant pour visiter !

Les informations sur les risques auxquels ce bien est exposé sont disponibles sur le site Géorisques : www. georisques. gouv. Fr

Partager

* Honoraires à la charge du vendeur

Caractéristiques


Prestations intérieures
  • Pièce(s) : 4
  • Chambre(s) : 3
  • Salle(s) de bain(s) : 1
  • WC : 1
Prestations extérieures
  • Accès handicapé : Non
  • Ascenseur : Non
  • Digicode : Non
Informations sur le lot
  • Localisation : Ivry-sur-Seine
  • Aucune procédure n'est en cours

Géorisques

Les informations sur les risques auxquels ce bien est exposé sont disponibles sur le site Géorisques. https://www.georisques.gouv.fr

Diagnostic de performance énergétique


  • Non soumis au DPE

  • Information non communiquée par l'annonceur

    Calculez vos mensualités


    calendar Created with Sketch.
    Vos mensualités
    Taux d'assurance non inclus
    ** Cette simulation est donnée à titre indicatif et n’a pas de valeur contractuelle. La mensualité est calculée sans assurance. Elle ne saurait être assimilée à une proposition commerciale. Elle est calculée sur des hypothèses en se basant sur les taux moyens proposés par les partenaires bancaires de CRESERFI
    calendar Created with Sketch.
    Vos mensualités
    Taux d'assurance non inclus
    ** Cette simulation est donnée à titre indicatif et n’a pas de valeur contractuelle. La mensualité est calculée sans assurance. Elle ne saurait être assimilée à une proposition commerciale. Elle est calculée sur des hypothèses en se basant sur les taux moyens proposés par les partenaires bancaires de CRESERFI
    400 000 €
    Appartement 80m2 à Ivry-sur-Seine
    En vente
    Achetez en toute confiance

    Appartement 80m2Ivry-sur-Seine

    vente
    400 000 €*
    Publiée le 30/01/2026

    QUADRAL TRANSACTIONS
  • Afficher le téléphone
  • ...

    Vous ne trouvez pas votre bonheur ?

    Confiez nous votre recherche
    En poursuivant votre navigation sur ce site, vous acceptez l'utilisation de cookies afin de vous proposer des services adaptés à votre profil. En savoir plus