Retour à la liste
Exclusivité
Photos
Carte

A propos de

Ref.1963233

Appartement
3 pièce(s)
2 chambre(s)
68m2

Iad France - Sandra Brest vous propose : AVIGNON - SAINT-HENRY

T3 de 68 m² - Rez-de-chaussée surélevé - Résidence calme et verdoyante

Avignon, cité d'art et d'histoire, séduit par son charme unique : le Palais des Papes majestueux, le célÚbre Pont d'Avignon, l'Opéra Grand Avignon, ses musées réputés, ses remparts médiévaux et ses places animées. Habiter Avignon, c'est profiter d'un patrimoine exceptionnel, d'une ville culturelle et agréable tout au long de l'année.

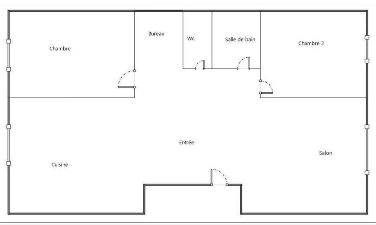
Dans le quartier de Saint-Henry, je vous propose ce T3 de 68 m² situé en rez-de-chaussée surélevé au sein d'une petite résidence sécurisée, paisible et entourée de verdure. Un lieu où la nature et le confort s'équilibrent harmonieusement, à proximité des commerces, des pÎles hospitaliers et des établissements scolaires.

DÚs l'entrée, des rangements intégrés facilitent l'organisation du quotidien.
La cuisine indépendante, aménagée et équipée, s'ouvre sur une agréable vue arborée et se prolonge par une loggia fermée trÚs pratique.
Le séjour lumineux donne accÚs à un balcon intimiste, entouré de beaux arbres qui apportent un charme naturel à l'environnement.

L'espace nuit est soigneusement conçu :

* deux chambres confortables, bien séparées de la piÚce de vie,
* un grand dressing indépendant placé entre les deux chambres, renforçant l'intimité de chacune,
* une salle de bains fonctionnelle avec baignoire,
* des toilettes séparées.

La résidence, composée de seulement 18 logements, offre une atmosphÚre conviviale et bienveillante. Les résidents y cultivent un esprit de voisinage chaleureux, avec des initiatives communes comme un compost partagé et des espaces fleuris entretenus collectivement.

L'emplacement est trÚs pratique : proximité de l'HÎpital d'Avignon, du MédipÎle, de l'école Joly Jean. Cet appartement se situe en face du Campus des Sciences et Techniques, ainsi que de l'Institut National Supérieur du Professorat et de l'Education. Proche des lignes de tram et de bus, il est facile de se déplacer.
Le centre historique et la gare d'Avignon se rejoignent en quelques minutes en voiture.
La Ceinture Verte, accessible à pied, permet de profiter facilement d'espaces naturels pour se promener ou faire du sport.

Sur le plan technique, le bien dispose d'un chauffage individuel au gaz, de fenêtres à double vitrage, d'une cave privative et d'une place de stationnement dans la résidence. La copropriété est entiÚrement fermée et bien entretenue.

Certaines photos ont été retouchées afin de proposer une projection du bien meublé.
Contactez-moi pour organiser une visite.

La presente annonce immobiliere vise 2 lots situés dans une copropriété de 36 lots au total et ne faisant l'objet d'aucune procédure en cours citée à l'article L. 721-1 du code de la construction et de l'habitation. Montant moyen mensuel de charges déclaré par le vendeur : 84.33€ par mois (soit 1012 € annuel). Honoraires d'agence à la charge du vendeur.
Information d'affichage énergétique sur ce bien : classe ENERGIE D indice 201 et classe CLIMAT D indice 43. Les informations sur les risques auxquels ce bien est exposé, y compris l'obligation légale de débroussaillement, sont disponibles sur le site Géorisques : http://www.georisques.gouv.fr.
La présente annonce immobiliÚre a été rédigée sous la responsabilité éditoriale de Mme Sandra Brest mandataire indépendant en immobilier (sans détention de fonds), agent commercial de la SAS I@D France immatriculé au RSAC de Avignon sous le numéro 935196113, titulaire de la carte de démarchage immobilier pour le compte de la société I@D France SAS.
Informations LOI ALUR :
Soumis au régime de copropriété.
Nombre de lots : 36.
Quote part annuelle(moyenne) : 1012 euros.
Honoraires charge vendeur. (gedeon_6727_32270658)

Partager

* Honoraires à la charge du vendeur

Caractéristiques


Prestations intérieures
  • Pièce(s) : 3
  • Chambre(s) : 2
  • Salle(s) de bain(s) : 1
  • Chauffage : individuel gaz radiateur
Prestations extérieures
  • Accès handicapé : Non
  • Ascenseur : Non
  • Digicode : Non
  • Parking : 1
  • Balcon : 1
  • Surface : m2
Informations sur le lot
  • Localisation : Avignon
  • Année de construction : 1964
  • Copropriété : Oui
  • Nombre de lots : 36
  • Montant annuel quote-part budget prévisionnel : 1012€

Agencement

Géorisques

Les informations sur les risques auxquels ce bien est exposé sont disponibles sur le site Géorisques. https://www.georisques.gouv.fr

Diagnostic de performance énergétique


  • Diagnostics de performance énergétiques (DPE)
    D
    Consommation (énergie primaire)
    201
    kWh/m².an
    Emissions (énergie primaire)
    43
    kWh/m².an
    A B C D E F G logement extrêmement performant logement extrêmement peu performant
  • Émissions de gaz à effet de serre (GES)
    D
    Émissions GES (gaz à effet de serre)
    43
    kg CO2/m².an
    A B C D E F G logement peu émetteur de CO2 logement très émetteur de CO2
  • Date du DPE : 23/05/2025
    Montant estimé des dépenses annuelles d’énergie pour un usage standard entre 1170.00€ et 1630.00€ par an. Prix moyens des énergies indexés en 09/01/2026 (abonnement compris)

    Cette annonce immobilière est rédigée sous la responsabilité de l’annonceur.

    Calculez vos mensualités


    calendar Created with Sketch.
    Vos mensualités
    Taux d'assurance non inclus
    ** Cette simulation est donnée à titre indicatif et n’a pas de valeur contractuelle. La mensualité est calculée sans assurance. Elle ne saurait être assimilée à une proposition commerciale. Elle est calculée sur des hypothèses en se basant sur les taux moyens proposés par les partenaires bancaires de CRESERFI
    calendar Created with Sketch.
    Vos mensualités
    Taux d'assurance non inclus
    ** Cette simulation est donnée à titre indicatif et n’a pas de valeur contractuelle. La mensualité est calculée sans assurance. Elle ne saurait être assimilée à une proposition commerciale. Elle est calculée sur des hypothèses en se basant sur les taux moyens proposés par les partenaires bancaires de CRESERFI
    128 000 €
    Appartement 68m2 à Avignon
    En vente
    Achetez en toute confiance

    Appartement 68m2Avignon

    vente
    128 000 €*
    Publiée le 05/12/2025

    IAD FRANCE
  • Afficher le téléphone
  • ...

    Vous ne trouvez pas votre bonheur ?

    Confiez nous votre recherche
    En poursuivant votre navigation sur ce site, vous acceptez l'utilisation de cookies afin de vous proposer des services adaptés à votre profil. En savoir plus