- 62



A propos de
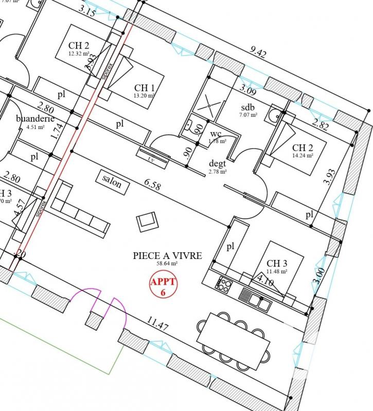
Iad France - Sabri Bouakkaz vous propose : Opportunité Rare ! Au Mas de la Bastide, lieu emblématique Nîmois dans le calme et un paysage verdoyant, Appartement de 90 m² en R + 1 desservi par une coursive, composé de :
- 3 chambres
- 1 salle de bain
- 1 buanderie
- 1 wc
- 1 piÚce à vivre de 50 m²
- 2 places de parking
Cet appartement est en cours de rénovation, avec des matériaux de qualité, et sera terminé pour Janvier 2026
Il comprends l'équipement de la cuisine et la salle de bain.
Il est entiÚrement climatisé (piÚce de vie plus chambres).
À 5 minutes du centre ville de Nîmes, il est desservi par les transports en commun.
Niché en plein milieu du complexe sportif et de son lac dans une magnifique copropriété composée de 6 habitations.
La presente annonce immobiliere vise 5 lots situés dans une copropriété de 6 lots au total et ne faisant l'objet d'aucune procédure en cours citée à l'article L. 721-1 du code de la construction et de l'habitation. Montant moyen mensuel de charges déclaré par le vendeur : 16.67€ par mois (soit 200 € annuel). Honoraires d'agence à la charge du vendeur.
Bien non soumis au DPE. Les informations sur les risques auxquels ce bien est exposé, y compris l'obligation légale de débroussaillement, sont disponibles sur le site Géorisques : http://www.georisques.gouv.fr.
La présente annonce immobiliÚre a été rédigée sous la responsabilité éditoriale de M Sabri Bouakkaz mandataire indépendant en immobilier (sans détention de fonds), agent commercial de la SAS I@D France immatriculé au RSAC de NIMES sous le numéro 834783771, titulaire de la carte de démarchage immobilier pour le compte de la société I@D France SAS.
Informations LOI ALUR :
Soumis au régime de copropriété.
Nombre de lots : 6.
Quote part annuelle(moyenne) : 200 euros.
Honoraires charge vendeur. (gedeon_6727_31950989)
* Honoraires à la charge du vendeur
Caractéristiques
Prestations intérieures
- Pièce(s) : 4
- Chambre(s) : 3
- Chauffage : individuel électrique
Prestations extérieures
- Accès handicapé : Non
- Ascenseur : Non
- Digicode : Non
- Parking : 1
Informations sur le lot
- Localisation : Nîmes
- Copropriété : Oui
- Nombre de lots : 6
- Montant annuel quote-part budget prévisionnel : 200€
Agencement
Géorisques
Les informations sur les risques auxquels ce bien est exposé sont disponibles sur le site Géorisques. https://www.georisques.gouv.frDiagnostic de performance énergétique
Non soumis au DPE
Information non communiquée par l'annonceur
Biens immobiliers similaires
Calculez vos mensualités
Vos mensualités
Appartement 90m2Nîmes
IAD FRANCE
