Retour à la liste
Nouveau depuis 5 heures
Photos
Vidéo
Carte

A propos de

Ref.211851

Appartement
6 pièce(s)
5 chambre(s)
144m2

APPARTEMENT EN TOIT TERRASSE EN PLATEAU - CHARME - ENVIRONNEMENT BUCOLIQUE ET CALME - A DEUX PAS DE LA GARE - GRAND JARDIN COMMUN - TRAVAUX A PREVOIR -

Amandine ANDRE et EFFICITY, l'agence qui estime gratuitement vos biens en ligne, vous proposent ce bel appartement de 144m2, situé à proximité immédiate de la gare de ST GERMAIN AU MONT D'OR, AU CALME.

Issu d'un ancien corps de ferme, ce lot allie le charme du bâti ancien et un cadre verdoyant très agréable.

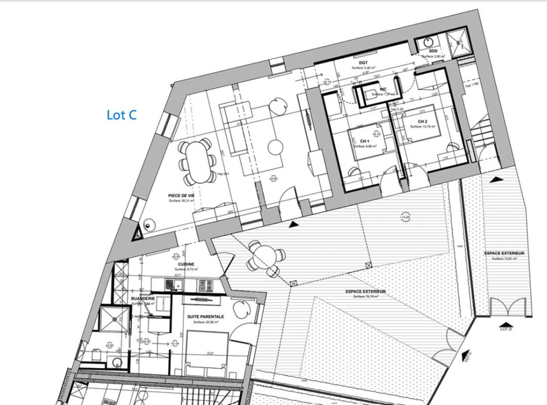
Cet appartement en toit terrasse de 144 m2 carrez se présente comme suit:

- Au 1er niveau, un bel espace séjour avec son salon de 33m2 et son balcon de 7m2, puis en enfilade son espace salle à manger et cuisine de 35m2 avec un accès direct sur la terrasse de 37m2, une buanderie et un WC séparé.
- Au dernier niveau, 4 grandes chambres et un bureau (ou possibilité de 5 chambres), dont une suite parentale avec son dressing, un WC, et une salle de bain.

Des travaux sont à prévoir !

2 places de stationnements sont prévues également.

La petite copropriété est composée de 4 lots, chacun avec ses 2 places de stationnements.

En plus de prestations de qualités pour votre habitation, vous bénéficierez d'un superbe cadre, entouré de verdure, au calme, avec l'accès au jardin commun et sa petite marre sécurisée qui sera un lieu de repos idéal!
Accès gare très facile et rapide.

Pour plus de renseignements, n'hésitez pas à contacter Amandine ANDRE au 06.25.36.86.43 ou par mail à aandre@efficity.com.
Les informations sur les risques auxquels ce bien est exposé sont disponibles sur le site Georisque : georisques. gouv. fr
Amandine André - EI - est Agent Commercial mandataire en immobilier, immatriculé au Registre Spécial des Agents Commerciaux du Tribunal de Commerce de Bourg en Bresse sous le n°753350123.
Siège social du mandant : effiCity, 48 avenue de Villiers - 75017 PARIS - Société par Actions Simplifiée, société au capital de 132 373,05 euros, immatriculée au RCS Paris 497 617 746 et titulaire de la Carte professionnelle CPI 7501 2015 000 002 025 - CCI Paris IDF - Caisse de Garantie : GALIAN Assurances 89 rue de la Boétie 75008 Paris

Partager

* Honoraires à la charge du vendeur

Caractéristiques


Prestations intérieures
  • Pièce(s) : 6
  • Chambre(s) : 5
  • Salle(s) de bain(s) : 2
  • Chauffage : individuel gaz radiateur
Prestations extérieures
  • Accès handicapé : Non
  • Ascenseur : Non
  • Digicode : Non
  • Parking : 2
  • Balcon : 1
  • Surface : m2
  • Terrasse : Oui
Informations sur le lot
  • Localisation : Saint-Germain-au-Mont-d'Or
  • Copropriété : Oui
  • Nombre de lots : 4
  • Montant annuel quote-part budget prévisionnel : 540€
  • Aucune procédure n'est en cours

Géorisques

Les informations sur les risques auxquels ce bien est exposé sont disponibles sur le site Géorisques. https://www.georisques.gouv.fr

Diagnostic de performance énergétique


  • Diagnostics de performance énergétiques (DPE)
    D
    Consommation (énergie primaire)
    194
    kWh/m².an
    Emissions (énergie primaire)
    38
    kWh/m².an
    A B C D E F G logement extrêmement performant logement extrêmement peu performant
  • Émissions de gaz à effet de serre (GES)
    D
    Émissions GES (gaz à effet de serre)
    38
    kg CO2/m².an
    A B C D E F G logement peu émetteur de CO2 logement très émetteur de CO2
  • Date du DPE : 23/08/2025
    Montant estimé des dépenses annuelles d’énergie pour un usage standard entre 1140.00€ et 1470.00€ par an. Prix moyens des énergies indexés en 01/01/2024 (abonnement compris)

    Cette annonce immobilière est rédigée sous la responsabilité de l’annonceur.

    Calculez vos mensualités


    calendar Created with Sketch.
    Vos mensualités
    Taux d'assurance non inclus
    ** Cette simulation est donnée à titre indicatif et n’a pas de valeur contractuelle. La mensualité est calculée sans assurance. Elle ne saurait être assimilée à une proposition commerciale. Elle est calculée sur des hypothèses en se basant sur les taux moyens proposés par les partenaires bancaires de CRESERFI
    calendar Created with Sketch.
    Vos mensualités
    Taux d'assurance non inclus
    ** Cette simulation est donnée à titre indicatif et n’a pas de valeur contractuelle. La mensualité est calculée sans assurance. Elle ne saurait être assimilée à une proposition commerciale. Elle est calculée sur des hypothèses en se basant sur les taux moyens proposés par les partenaires bancaires de CRESERFI
    370 000 €
    Appartement 144m2 à Saint-Germain-au-Mont-d'Or
    En vente
    Achetez en toute confiance

    Appartement 144m2Saint-Germain-au-Mont-d'Or

    vente
    370 000 €*
    Publiée le 23/04/2026

    RESEAU EFFICITY
  • Afficher le téléphone
  • Service estimation

    Vous ne trouvez pas votre bonheur ?

    Confiez nous votre recherche
    En poursuivant votre navigation sur ce site, vous acceptez l'utilisation de cookies afin de vous proposer des services adaptés à votre profil. En savoir plus