Retour à la liste
Exclusivité
Nouveau depuis 16 heures
Photos
Carte

A propos de

Ref.1979954

Appartement
3 pièce(s)
2 chambre(s)
56m2

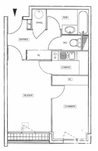
Iad France - Nassim Rehailia vous propose : Superbe Appartement T3 RDC Lumineux et Moderne à PantinBienvenue dans cet appartement moderne et lumineux situé à Pantin, idéalement conçu pour offrir confort, fonctionnalité et style. Cet appartement T3, d'une surface de 56.44 m², est un véritable bijou de l'immobilier. Il se compose de 2 chambres spacieuses, d'une cuisine équipée, d'une salle à manger, d'une salle de bain et d'un WC indépendant. Chaque espace a été agencé avec soin pour optimiser la luminosité et l'harmonie des lieux. Construit en 2014, ce bien est en excellent état, prêt à accueillir ses nouveaux propriétaires. Il est situé au RDC d'un immeuble de 2 niveaux Les prestations haut de gamme ne manquent pas : câble TV, fibre optique, accès PMR, digicode, interphone, porte blindée, chauffage au gaz de ville par réseau de chaleur urbain, ventilation mécanique... tout a été pensé pour votre confort et votre sécurité. Côté extérieur, vous bénéficiez d'une place de parking privative, un atout non négligeable dans une ville dynamique comme Pantin. Les orientations nord et ouest vous permettent de profiter d'une belle luminosité tout au long de la journée et de magnifiques couchers de soleil. Situé dans une résidence sécurisée, cet appartement offre un cadre de vie agréable et paisible. Les espaces verts et les commodités à proximité ajoutent du cachet à ce bien d'exception. Ne tardez pas à visiter ce joyau immobilier qui saura vous séduire par son charme et sa qualité. C'est une opportunité à ne pas manquer dans le marché immobilier de Pantin. La presente annonce immobiliere vise 2 lots situés dans une copropriété de 116 lots au total et ne faisant l'objet d'aucune procédure en cours citée à l'article L. 721-1 du code de la construction et de l'habitation. Montant moyen mensuel de charges déclaré par le vendeur : 170€ par mois (soit 2040 € annuel). Honoraires d'agence à la charge du vendeur. Information d'affichage énergétique sur ce bien : classe ENERGIE C indice 136 et classe CLIMAT C indice 27. Les informations sur les risques auxquels ce bien est exposé, y compris l'obligation légale de débroussaillement, sont disponibles sur le site Géorisques : http://www.georisques.gouv.fr.La présente annonce immobilière a été rédigée sous la responsabilité éditoriale de M Nassim Rehailia mandataire indépendant en immobilier (sans détention de fonds), agent commercial de la SAS I@D France immatriculé au RSAC de BOBIGNY sous le numéro 534505979, titulaire de la carte de démarchage immobilier pour le compte de la société I@D France SAS. (gedeon_6727_32468658)

Partager

* Honoraires à la charge du vendeur

Caractéristiques


Prestations intérieures
  • Pièce(s) : 3
  • Chambre(s) : 2
  • Salle(s) de bain(s) : 1
  • Chauffage : collectif gaz
Prestations extérieures
  • Accès handicapé : Non
  • Ascenseur : Oui
  • Digicode : Non
  • Parking : 1
Informations sur le lot
  • Localisation : Pantin
  • Année de construction : 2014
  • Copropriété : Oui
  • Nombre de lots : 116
  • Montant annuel quote-part budget prévisionnel : 2040€
  • Aucune procédure n'est en cours

Géorisques

Les informations sur les risques auxquels ce bien est exposé sont disponibles sur le site Géorisques. https://www.georisques.gouv.fr

Diagnostic de performance énergétique


  • Diagnostics de performance énergétiques (DPE)
    C
    Consommation (énergie primaire)
    136
    kWh/m².an
    Emissions (énergie primaire)
    27
    kWh/m².an
    A B C D E F G logement extrêmement performant logement extrêmement peu performant
  • Émissions de gaz à effet de serre (GES)
    C
    Émissions GES (gaz à effet de serre)
    27
    kg CO2/m².an
    A B C D E F G logement peu émetteur de CO2 logement très émetteur de CO2
  • Date du DPE : 18/07/2024
    Montant estimé des dépenses annuelles d’énergie pour un usage standard entre 610.00€ et 810.00€ par an. Prix moyens des énergies indexés en 11/04/2026 (abonnement compris)

    Cette annonce immobilière est rédigée sous la responsabilité de l’annonceur.

    Calculez vos mensualités


    calendar Created with Sketch.
    Vos mensualités
    Taux d'assurance non inclus
    ** Cette simulation est donnée à titre indicatif et n’a pas de valeur contractuelle. La mensualité est calculée sans assurance. Elle ne saurait être assimilée à une proposition commerciale. Elle est calculée sur des hypothèses en se basant sur les taux moyens proposés par les partenaires bancaires de CRESERFI
    calendar Created with Sketch.
    Vos mensualités
    Taux d'assurance non inclus
    ** Cette simulation est donnée à titre indicatif et n’a pas de valeur contractuelle. La mensualité est calculée sans assurance. Elle ne saurait être assimilée à une proposition commerciale. Elle est calculée sur des hypothèses en se basant sur les taux moyens proposés par les partenaires bancaires de CRESERFI
    260 000 €
    Appartement 56m2 à Pantin
    En vente
    Achetez en toute confiance

    Appartement 56m2Pantin

    vente
    260 000 €*
    Publiée le 11/04/2026

    IAD FRANCE
  • Afficher le téléphone
  • ...

    Vous ne trouvez pas votre bonheur ?

    Confiez nous votre recherche
    En poursuivant votre navigation sur ce site, vous acceptez l'utilisation de cookies afin de vous proposer des services adaptés à votre profil. En savoir plus