Retour à la liste
Nouveau depuis 6 heures
Photos

A propos de

Ref.1881917

Appartement
4 pièce(s)
3 chambre(s)
88m2

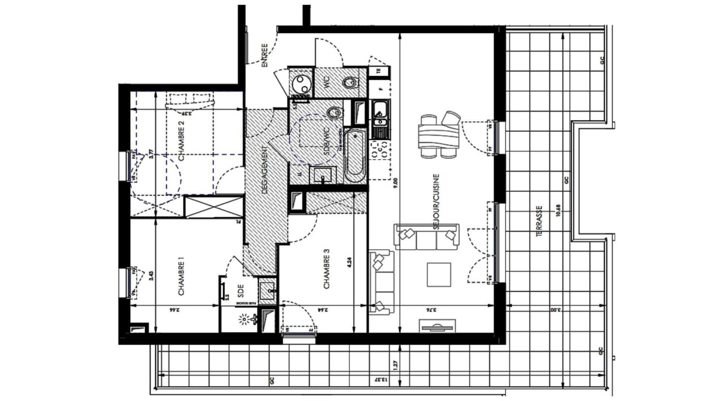
Iad France - Sarah Rozière (06 99 86 19 42) vous propose : Appartement T4 avec terrasse à La Ciotat. Située avenue de la Marine à La Ciotat, la résidence La Carmele allie charme provençal et architecture contemporaine. Entre Méditerranée et collines du Parc national des Calanques, cette adresse offre un cadre de vie rare, calme et ensoleillé, à proximité du centre-ville et des plages. Disponible 2027. Un appartement raffiné : Situé au 3 ème étage, cet appartement T4 de 88 m² environ habitables se prolonge par une terrasse de 42 m² environ.- Séjour / cuisine de 34 m² environ.- Trois chambres confortables.- Salle de bains moderne et WC séparé.- Annexe incluse : deux parkings. De belles prestations : - Chauffage des séjours par pompe à chaleur monosplit.- Chauffage électrique par panneaux rayonnants dans les chambres.- Volets roulants motorisés et menuiseries PVC gris clair.- Résidence sécurisée avec ascenseur et stationnements en sous-sol. L'art de vivre à La Ciotat : - À 5 minutes des plages et du vieux port.- Commerces, écoles et services accessibles à pied.- À proximité du Parc du Mugel et des Calanques de Figuerolles.- Accès rapide à l'A50 vers Marseille et Toulon.- Quartier résidentiel calme et verdoyant, idéal pour une résidence principale ou un pied-à-terre. N'hésitez pas à me contacter pour plus d'informations ou pour un accompagnement sur mesure. Honoraires d'agence à la charge du vendeur. Bien non soumis au DPE. Les informations sur les risques auxquels ce bien est exposé sont disponibles sur le site Géorisques : www.georisques.gouv.fr. La présente annonce immobilière a été rédigée sous la responsabilité éditoriale de Mlle Sarah Rozière EI (ID 83696), mandataire indépendant en immobilier (sans détention de fonds), agent commercial de la SAS I@D France immatriculé au RSAC de Clermont-Ferrand sous le numéro 978616993, titulaire de la carte de démarchage immobilier pour le compte de la société I@D France SAS. Retrouvez tous nos biens sur notre site internet. www.iadfrance.fr.Informations LOI ALUR : Honoraires charge vendeur. (gedeon_6727_32005765)

Partager

* Honoraires à la charge du vendeur

Caractéristiques


Prestations intérieures
  • Pièce(s) : 4
  • Chambre(s) : 3
  • Chauffage : individuel électrique radiateur
Prestations extérieures
  • Accès handicapé : Non
  • Ascenseur : Oui
  • Digicode : Non
  • Parking : 1
  • Terrasse : Oui
Informations sur le lot
  • Localisation : La Ciotat
  • Aucune procédure n'est en cours

Géorisques

Les informations sur les risques auxquels ce bien est exposé sont disponibles sur le site Géorisques. https://www.georisques.gouv.fr

Diagnostic de performance énergétique


  • Non soumis au DPE

  • Information non communiquée par l'annonceur

    Cette annonce immobilière est rédigée sous la responsabilité de l’annonceur.

    Calculez vos mensualités


    calendar Created with Sketch.
    Vos mensualités
    Taux d'assurance non inclus
    ** Cette simulation est donnée à titre indicatif et n’a pas de valeur contractuelle. La mensualité est calculée sans assurance. Elle ne saurait être assimilée à une proposition commerciale. Elle est calculée sur des hypothèses en se basant sur les taux moyens proposés par les partenaires bancaires de CRESERFI
    calendar Created with Sketch.
    Vos mensualités
    Taux d'assurance non inclus
    ** Cette simulation est donnée à titre indicatif et n’a pas de valeur contractuelle. La mensualité est calculée sans assurance. Elle ne saurait être assimilée à une proposition commerciale. Elle est calculée sur des hypothèses en se basant sur les taux moyens proposés par les partenaires bancaires de CRESERFI
    700 000 €
    Appartement 88m2 à La Ciotat
    En vente
    Achetez en toute confiance

    Appartement 88m2La Ciotat

    vente
    700 000 €*
    Publiée le 06/04/2026

    IAD FRANCE
  • Afficher le téléphone
  • ...

    Vous ne trouvez pas votre bonheur ?

    Confiez nous votre recherche
    En poursuivant votre navigation sur ce site, vous acceptez l'utilisation de cookies afin de vous proposer des services adaptés à votre profil. En savoir plus