Retour à la liste
Photos

CSF propose cet appartement de 2 pièces à Antibes au prix de 250 249 €. Découvrez les caractéristiques complètes de ce bien et contactez-nous pour une visite.

A propos de

Ref.1923311

Appartement
2 pièce(s)
40m2

Iad France - Cyril Fournier (06 34 26 49 62) vous propose : Charmant 2 pièces avec balcon et parking - Antibes
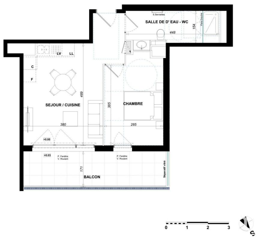
Dans un secteur calme et résidentiel d'Antibes, découvrez ce bel appartement 2 pièces situé en étage élevé d'une résidence récente et élégante.
Son exposition sud-ouest et ses grandes ouvertures assurent une belle luminosité tout au long de la journée.
Idéal pour un investissement locatif ou une résidence principale, ce bien allie confort, modernité et emplacement recherché.
________________________________________
? Caractéristiques du bien
oType : Appartement T2
oÉtage : 3? étage
oSurface habitable : 40,25 m² environ
oBalcon : 11,3 m² environ
oExposition : Sud-Ouest
oStationnement : 1 place privative en sous-sol
oChauffage : Électrique individuel
oIsolation : Conforme aux dernières normes thermiques et acoustiques
________________________________________
? Prestations de qualité
oRésidence sécurisée et soignée
oVolets roulants électriques
oSalle d'eau aménagée avec meuble vasque, miroir et sèche-serviettes
oCarrelage grand format dans les pièces principales
oFaïence murale toute hauteur dans la salle d'eau
oMenuiseries double vitrage
oAscenseur et local vélos
oEnvironnement paysager et piétonnier très agréable
________________________________________
? Cadre de vie
Situé dans un quartier recherché d'Antibes, à proximité immédiate des commerces, écoles, et transports, cet appartement bénéficie d'une situation idéale :
oAccès rapide aux axes principaux et à Sophia-Antipolis
oPlages et centre-ville à quelques minutes
oQuartier paisible et verdoyant, parfait pour une vie active ou sereine
________________________________________
? Données financières
oPrix de vente : 283 000 €
oFrais de notaire à la charge du vendeur
oLoyer estimé : 738 € / mois
oRentabilité brute estimée : environ 3,4 %
oParking inclus dans le prix
________________________________________
? Les points forts
oLuminosité et exposition sud-ouest
oBel espace de vie de plus de 21 m² environ
oBalcon de 11 m² environ, idéal pour les repas en extérieur
oPrestations modernes et confort quotidien
oParking privatif sécurisé
oFrais de notaire offerts
oIdéal investisseur ou jeune couple

Honoraires d'agence à la charge du vendeur. Bien non soumis au DPE. Les informations sur les risques auxquels ce bien est exposé sont disponibles sur le site Géorisques : www.georisques.gouv.fr. La présente annonce immobilière a été rédigée sous la responsabilité éditoriale de M. Cyril Fournier EI (ID 57751), mandataire indépendant en immobilier (sans détention de fonds), agent commercial de la SAS I@D France immatriculé au RSAC de Cannes sous le numéro 751452475, titulaire de la carte de démarchage immobilier pour le compte de la société I@D France SAS.
Retrouvez tous nos biens sur notre site internet. www.iadfrance.fr. (gedeon_6727_32055428)

Partager

* Honoraires à la charge du vendeur

Caractéristiques


Prestations intérieures
Surface habitable : 40 m2
Pièce(s) : 2
Informations sur le lot
Localisation : Antibes

Géorisques

Les informations sur les risques auxquels ce bien est exposé sont disponibles sur le site Géorisques. https://www.georisques.gouv.fr

Diagnostic de performance énergétique


  • Non soumis au DPE

  • Information non communiquée par l'annonceur

    Cette annonce immobilière est rédigée sous la responsabilité de l’annonceur.

    Calculez vos mensualités


    calendar Created with Sketch.
    Vos mensualités
    Taux d'assurance non inclus
    ** Cette simulation est donnée à titre indicatif et n’a pas de valeur contractuelle. La mensualité est calculée sans assurance. Elle ne saurait être assimilée à une proposition commerciale. Elle est calculée sur des hypothèses en se basant sur les taux moyens proposés par les partenaires bancaires de CRESERFI
    calendar Created with Sketch.
    Vos mensualités
    Taux d'assurance non inclus
    ** Cette simulation est donnée à titre indicatif et n’a pas de valeur contractuelle. La mensualité est calculée sans assurance. Elle ne saurait être assimilée à une proposition commerciale. Elle est calculée sur des hypothèses en se basant sur les taux moyens proposés par les partenaires bancaires de CRESERFI
    250 249 €
    Appartement 40m2 à Antibes
    En vente
    Achetez en toute confiance

    Appartement 40m2Antibes

    vente
    250 249 €*
    Publiée le 15/03/2026

    I@D FRANCE
  • Afficher le téléphone
  • Service estimation

    Vous ne trouvez pas votre bonheur ?

    Confiez nous votre recherche
    En poursuivant votre navigation sur ce site, vous acceptez l'utilisation de cookies afin de vous proposer des services adaptés à votre profil. En savoir plus