Retour à la liste
Photos

A propos de

Ref.2030709

Maison de village
5 pièce(s)
3 chambre(s)
155m2

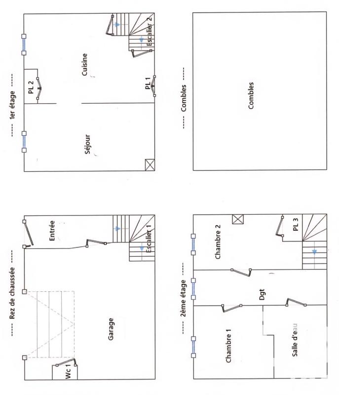
Iad France - Sébastien Narces vous propose : * MAISON CAPESTANG 155 m² - 60 m² DE GARAGE- 3 CHAMBRES * Au bord du canal du midi, sur la commune de Capestang, village avec commodités, entre Béziers et Narbonne et à moins de 30 minutes des plages. Venez découvrir cette belle maison familiale de 155 m² sur une parcelle de 235 m², grand garage de 60 m² avec porte motorisée. Elle se compose en rez de chaussée d'un hall d'entrée avec escalier et rangement qui dessert un bureau de 12 m² avec une piÚce de 22 m², également une cuisine d'été. À l'étage se trouve 3 belles chambres, une salle d'eau avec douche à l'italienne, wc séparé, une cuisine fermée. Une terrasse de 12 m² et une véranda chauffée de 23 m² se trouve également à cet étage pour plus de confort avec vue sur la collégiale ! Un grand grenier accessible par échelle escamotable pour plus de rangements. Chauffage centrale au GAZ La maison est raccordée au tout à l'égout. Travaux à prévoir Honoraires d'agence à la charge de l'acquéreur. Prix honoraires inclus : 209000 euros. Prix hors honoraires : 200000 euros. Honoraires TTC à la charge de l'acquéreur (4,50% du prix du bien hors honoraires) : 9000 euros. Information d'affichage énergétique sur ce bien : classe ENERGIE D indice 246 et classe CLIMAT C indice 29. Les informations sur les risques auxquels ce bien est exposé, y compris l'obligation légale de débroussaillement, sont disponibles sur le site Géorisques : http://www.georisques.gouv.fr.La présente annonce immobiliÚre a été rédigée sous la responsabilité éditoriale de M Sébastien Narces mandataire indépendant en immobilier (sans détention de fonds), agent commercial de la SAS I@D France immatriculé au RSAC de Narbonne sous le numéro 499986776, titulaire de la carte de démarchage immobilier pour le compte de la société I@D France SAS. (gedeon_6727_32832919)

Partager

* 200 000 € honoraires exclus - Honoraires maximums de % TTC à la charge de l'acquéreur

Caractéristiques


Prestations intérieures
  • Pièce(s) : 5
  • Chambre(s) : 3
  • Chauffage : gaz radiateur
Prestations extérieures
  • Accès handicapé : Non
  • Ascenseur : Non
  • Jardin : 235 m2
  • Digicode : Non
Informations sur le lot
  • Localisation : Capestang
  • Année de construction : 1969
  • Aucune procédure n'est en cours

Géorisques

Les informations sur les risques auxquels ce bien est exposé sont disponibles sur le site Géorisques. https://www.georisques.gouv.fr

Diagnostic de performance énergétique


  • Diagnostics de performance énergétiques (DPE)
    D
    Consommation (énergie primaire)
    246
    kWh/m².an
    Emissions (énergie primaire)
    29
    kWh/m².an
    A B C D E F G logement extrêmement performant logement extrêmement peu performant
  • Émissions de gaz à effet de serre (GES)
    C
    Émissions GES (gaz à effet de serre)
    29
    kg CO2/m².an
    A B C D E F G logement peu émetteur de CO2 logement très émetteur de CO2
  • Date du DPE : 26/09/2024
    Montant estimé des dépenses annuelles d’énergie pour un usage standard entre 3087.00€ et 4177.00€ par an. Prix moyens des énergies indexés en 24/03/2026 (abonnement compris)

    Cette annonce immobilière est rédigée sous la responsabilité de l’annonceur.

    Calculez vos mensualités


    calendar Created with Sketch.
    Vos mensualités
    Taux d'assurance non inclus
    ** Cette simulation est donnée à titre indicatif et n’a pas de valeur contractuelle. La mensualité est calculée sans assurance. Elle ne saurait être assimilée à une proposition commerciale. Elle est calculée sur des hypothèses en se basant sur les taux moyens proposés par les partenaires bancaires de CRESERFI
    calendar Created with Sketch.
    Vos mensualités
    Taux d'assurance non inclus
    ** Cette simulation est donnée à titre indicatif et n’a pas de valeur contractuelle. La mensualité est calculée sans assurance. Elle ne saurait être assimilée à une proposition commerciale. Elle est calculée sur des hypothèses en se basant sur les taux moyens proposés par les partenaires bancaires de CRESERFI
    209 000 €
    Maison de village 155m2 à Capestang
    En vente
    Achetez en toute confiance

    Maison de village 155m2Capestang

    vente
    209 000 €*
    Publiée le 12/03/2026

    IAD FRANCE
    ...

    Vous ne trouvez pas votre bonheur ?

    Confiez nous votre recherche
    En poursuivant votre navigation sur ce site, vous acceptez l'utilisation de cookies afin de vous proposer des services adaptés à votre profil. En savoir plus