Retour à la liste
Exclusivité
Photos
Carte

CSF propose cette maison de ville de 4 pièces à Vaulx-en-Velin au prix de 385 000 €. Découvrez les caractéristiques complètes de ce bien et contactez-nous pour une visite.

A propos de

Ref.205551

Maison de ville
4 pièce(s)
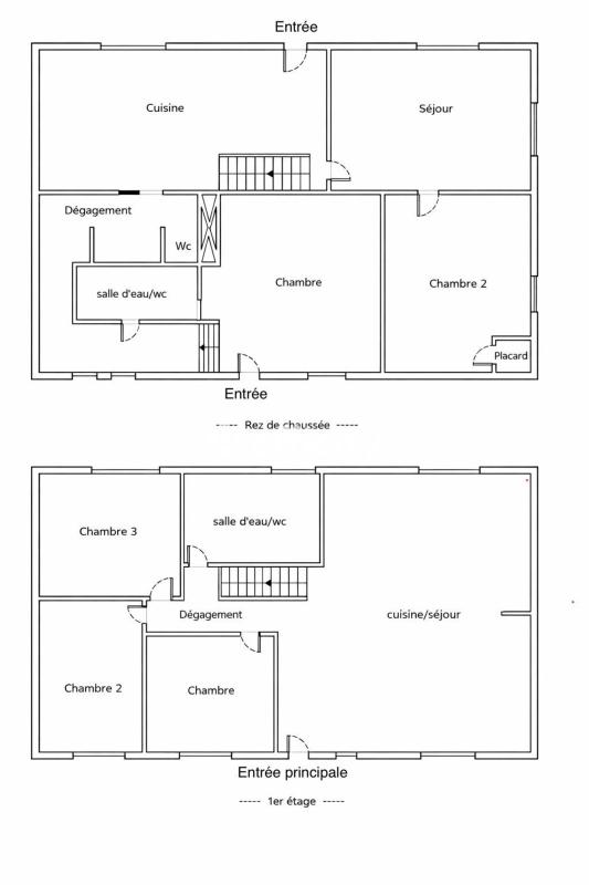
3 chambre(s)
97m2

69120 - VAULX-EN-VELIN VILLAGE - 4 PIECES - 3 CHAMBRES - 97m² - MAISON INDIVIDUELLE - JARDIN 550m2 - DEPENDANCE AMENAGEABLE ET GARAGE -

Stéphanie Guiot et effiCity, l'agence qui estime votre bien en ligne, vous présente en exclusivité cette magnifique maison située dans un quartier résidentiel prisé de Vaulx-en-Velin Village.

Cette maison individuelle sans copropriété sur son terrain sans vis à vis de 550m2, en parfait état, saura vous séduire par ses nombreux atouts. Dotée de trois chambres (possible quatre), une grande pièce de vie avec cuisine équipée et ouverte d'une surface de 48m², d'une buanderie et d'une luminosité exceptionnelle, cette maison offre un cadre de vie unique.

Le jardin, la terrasse, exposée plein Sud, Est et Ouest, vous permettront de profiter pleinement des beaux jours en toute intimité. Vous apprécierez également la dépendance aménageable de 16m², idéale pour créer un espace supplémentaire selon vos besoins.

Le garage attenant et les places de stationnement extérieures facilitent le stationnement de vos véhicules et garantissent un confort au quotidien. De plus, vous bénéficierez d'un cabanon de jardin pour ranger vos outils et équipements.

Cette maison dispose d'un portail électrique, assurant ainsi votre sécurité et votre tranquillité. Les huisseries neuves, l'exposition optimale et le calme environnant sont des atouts supplémentaires qui rendent ce bien encore plus attrayant.

Située dans un quartier calme et verdoyant, proche de toutes les commodités, cette maison est un véritable havre de paix.

Contactez moi dès maintenant pour organiser une visite et découvrir ce petit bijou : Stéphanie Guiot 07 83 21 36 17 ou par mail à sguiot@efficity.com
Les informations sur les risques auxquels ce bien est exposé sont disponibles sur le site Georisque : georisques. gouv. fr
Stephanie Guiot - EI - est Agent Commercial mandataire en immobilier, immatriculé au Registre Spécial des Agents Commerciaux du Tribunal de Commerce de Lyon sous le n°400064168.
Siège social du mandant : effiCity, 48 avenue de Villiers - 75017 PARIS - Société par Actions Simplifiée, société au capital de 132 373,05 euros, immatriculée au RCS Paris 497 617 746 et titulaire de la Carte professionnelle CPI 7501 2015 000 002 025 - CCI Paris IDF - Caisse de Garantie : GALIAN Assurances 89 rue de la Boétie 75008 Paris

Partager

* Honoraires à la charge du vendeur

Caractéristiques


Prestations intérieures
Surface habitable : 97 m2
Pièce(s) : 4
Chambre(s) : 3
Chauffage : individuel électrique
Prestations extérieures
Accès handicapé : 1
Jardin : 550 m2
Parking : 3
Terrasse : Oui
Informations sur le lot
Localisation : Vaulx-en-Velin
Année de construction : 1987

Géorisques

Les informations sur les risques auxquels ce bien est exposé sont disponibles sur le site Géorisques. https://www.georisques.gouv.fr

Diagnostic de performance énergétique


  • Diagnostics de performance énergétiques (DPE)
    B
    Consommation (énergie primaire)
    105
    kWh/m².an
    Emissions (énergie primaire)
    4
    kWh/m².an
    A B C D E F G logement extrêmement performant logement extrêmement peu performant
  • Émissions de gaz à effet de serre (GES)
    A
    Émissions GES (gaz à effet de serre)
    4
    kg CO2/m².an
    A B C D E F G logement peu émetteur de CO2 logement très émetteur de CO2
  • Date du DPE : 19/01/2026
    Montant estimé des dépenses annuelles d’énergie pour un usage standard entre 990.00€ et 1380.00€ par an. Prix moyens des énergies indexés en 01/01/2025 (abonnement compris)

    Cette annonce immobilière est rédigée sous la responsabilité de l’annonceur.

    Calculez vos mensualités


    calendar Created with Sketch.
    Vos mensualités
    Taux d'assurance non inclus
    ** Cette simulation est donnée à titre indicatif et n’a pas de valeur contractuelle. La mensualité est calculée sans assurance. Elle ne saurait être assimilée à une proposition commerciale. Elle est calculée sur des hypothèses en se basant sur les taux moyens proposés par les partenaires bancaires de CRESERFI
    calendar Created with Sketch.
    Vos mensualités
    Taux d'assurance non inclus
    ** Cette simulation est donnée à titre indicatif et n’a pas de valeur contractuelle. La mensualité est calculée sans assurance. Elle ne saurait être assimilée à une proposition commerciale. Elle est calculée sur des hypothèses en se basant sur les taux moyens proposés par les partenaires bancaires de CRESERFI
    385 000 €
    Maison de ville 97m2 à Vaulx-en-Velin
    En vente
    Achetez en toute confiance

    Maison de ville 97m2Vaulx-en-Velin

    vente
    385 000 €*
    Publiée le 27/02/2026

    RESEAU EFFICITY
  • Afficher le téléphone
  • Service estimation

    Vous ne trouvez pas votre bonheur ?

    Confiez nous votre recherche
    En poursuivant votre navigation sur ce site, vous acceptez l'utilisation de cookies afin de vous proposer des services adaptés à votre profil. En savoir plus