Retour à la liste
Photos

A propos de

Ref.1950802

Appartement
4 pièce(s)
3 chambre(s)
71m2

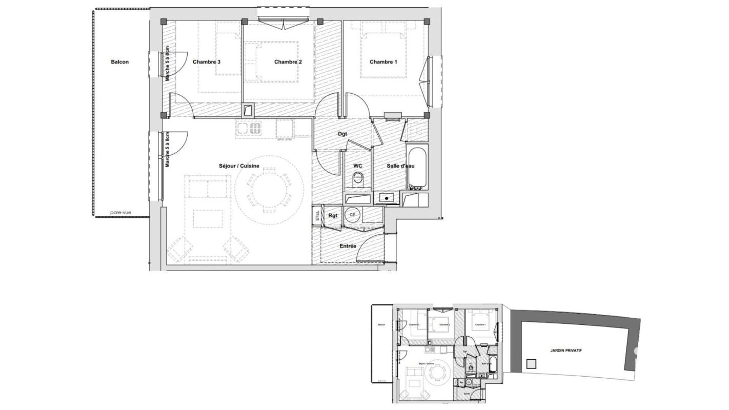
Iad France - Sarah RoziÚre (06 99 86 19 42) vous propose : Appartement T4 avec balcon et jardin à Riom. Située au cOEur de l'écoquartier de l'AmbÚne, dans un environnement moderne et verdoyant, la résidence contemporaine Les Rives de l'AmbÚne conjugue élégance architecturale et confort de vie. À proximité des commerces, des transports, des bassins de vie et des espaces naturels, cette adresse offre un cadre paisible et qualitatif à seulement quelques minutes du centre de Riom et de Clermont-Ferrand. Disponible 2027. Un appartement raffiné : Situé au 1 er étage, cet appartement T4 de 71 m² environ habitables se prolonge par un balcon de 12 m² environ et un jardin privatif.- Séjour / cuisine de 28 m² environ.- Trois chambres confortables.- Salle de bains moderne. De belles prestations : - Chauffage et production d'eau chaude via systÚme collectif.- Menuiseries extérieures avec double vitrage isolant, volets roulants électriques.- Résidence sécurisée avec visiophone, contrÎle d'accÚs Vigik et ascenseur.- Locaux vélos sécurisés, espaces paysagers, sous-sols aménagés. L'art de vivre aux Rives de l'AmbÚne : - À deux pas des commerces et services du quartier.- À proximité des axes majeurs vers Clermont-Ferrand.- Environnement paisible, moderne et parfaitement desservi.- AccÚs rapide aux zones d'activités, écoles et transports. N'hésitez pas à me contacter pour plus d'informations ou pour un accompagnement sur mesure. Honoraires d'agence à la charge du vendeur. Bien non soumis au DPE. Les informations sur les risques auxquels ce bien est exposé sont disponibles sur le site Géorisques : www.georisques.gouv.fr. La présente annonce immobiliÚre a été rédigée sous la responsabilité éditoriale de Mlle Sarah RoziÚre EI (ID 83696), mandataire indépendant en immobilier (sans détention de fonds), agent commercial de la SAS I@D France immatriculé au RSAC de Clermont-Ferrand sous le numéro 978616993, titulaire de la carte de démarchage immobilier pour le compte de la société I@D France SAS. Retrouvez tous nos biens sur notre site internet. www.iadfrance.fr. (gedeon_6727_32176487)

Partager

* Honoraires à la charge du vendeur

Caractéristiques


Prestations intérieures
  • Pièce(s) : 4
  • Chambre(s) : 3
Prestations extérieures
  • Accès handicapé : Non
  • Ascenseur : Oui
  • Digicode : Non
  • Balcon : 1
  • Surface : m2
  • Terrasse : Oui
Informations sur le lot
  • Localisation : Riom
  • Aucune procédure n'est en cours

Géorisques

Les informations sur les risques auxquels ce bien est exposé sont disponibles sur le site Géorisques. https://www.georisques.gouv.fr

Diagnostic de performance énergétique


  • Non soumis au DPE

  • Information non communiquée par l'annonceur

    Cette annonce immobilière est rédigée sous la responsabilité de l’annonceur.

    Calculez vos mensualités


    calendar Created with Sketch.
    Vos mensualités
    Taux d'assurance non inclus
    ** Cette simulation est donnée à titre indicatif et n’a pas de valeur contractuelle. La mensualité est calculée sans assurance. Elle ne saurait être assimilée à une proposition commerciale. Elle est calculée sur des hypothèses en se basant sur les taux moyens proposés par les partenaires bancaires de CRESERFI
    calendar Created with Sketch.
    Vos mensualités
    Taux d'assurance non inclus
    ** Cette simulation est donnée à titre indicatif et n’a pas de valeur contractuelle. La mensualité est calculée sans assurance. Elle ne saurait être assimilée à une proposition commerciale. Elle est calculée sur des hypothèses en se basant sur les taux moyens proposés par les partenaires bancaires de CRESERFI
    254 000 €
    Appartement 71m2 à Riom
    En vente
    Achetez en toute confiance

    Appartement 71m2Riom

    vente
    254 000 €*
    Publiée le 04/02/2026

    IAD FRANCE
  • Afficher le téléphone
  • ...

    Vous ne trouvez pas votre bonheur ?

    Confiez nous votre recherche
    En poursuivant votre navigation sur ce site, vous acceptez l'utilisation de cookies afin de vous proposer des services adaptés à votre profil. En savoir plus