Retour à la liste
Photos

A propos de

Ref.1951438

Appartement
4 pièce(s)
3 chambre(s)
77m2

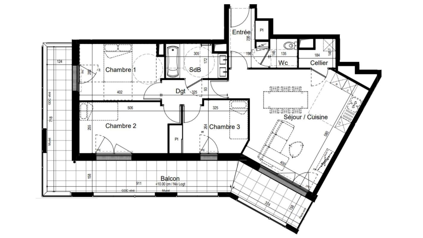
Iad France - Sarah RoziÚre (06 99 86 19 42) vous propose : Appartement T4 avec balcon à Saint-Malo. Située boulevard des Talards, au cOEur d'un environnement dynamique et parfaitement connecté, la résidence contemporaine Port Vauban conjugue élégance architecturale et confort de vie. À proximité immédiate de la gare, des commerces, des plages et des équipements culturels, cette adresse offre un cadre agréable à seulement quelques minutes d'Intra-Muros. Un appartement raffiné : Situé au 2 Úme étage, cet appartement T4 de 77 m² environ habitables se prolonge par un balcon de 28 m² environ.- Séjour / cuisine de 27 m² environ.- Trois chambres confortables.- Salle de bain moderne.- Annexes incluses : un parking en sous-sol. De belles prestations : - Menuiseries PVC gris foncé avec double vitrage isolant. - Résidence sécurisée avec contrÎle d'accÚs Vigik et visiophone.- Espaces verts aménagés et voie verte au pied de la résidence. L'art de vivre à Saint-Malo : - À proximité immédiate du cOEur du Grand Saint-Malo.- À 10 minutes à pied des plages et de la cÎte d'Émeraude.- À deux pas de la gare TGV (2h17 de Paris).- Commerces, restaurants, médiathÚque, écoles et équipements sportifs accessibles à pied.- Environnement urbain rénové et voie verte traversant toute la ville. N'hésitez pas à me contacter pour plus d'informations ou pour un accompagnement sur mesure. Honoraires d'agence à la charge du vendeur. Bien non soumis au DPE. Les informations sur les risques auxquels ce bien est exposé sont disponibles sur le site Géorisques : www.georisques.gouv.fr. La présente annonce immobiliÚre a été rédigée sous la responsabilité éditoriale de Mlle Sarah RoziÚre EI (ID 83696), mandataire indépendant en immobilier (sans détention de fonds), agent commercial de la SAS I@D France immatriculé au RSAC de Clermont-Ferrand sous le numéro 978616993, titulaire de la carte de démarchage immobilier pour le compte de la société I@D France SAS. Retrouvez tous nos biens sur notre site internet. www.iadfrance.fr. (gedeon_6727_32191202)

Partager

* Honoraires à la charge du vendeur

Caractéristiques


Prestations intérieures
  • Pièce(s) : 4
  • Chambre(s) : 3
  • Chauffage : individuel électrique radiateur
Prestations extérieures
  • Accès handicapé : Non
  • Ascenseur : Oui
  • Digicode : Non
  • Parking : 1
  • Balcon : 1
  • Surface : m2
Informations sur le lot
  • Localisation : Saint-Malo
  • Aucune procédure n'est en cours

Géorisques

Les informations sur les risques auxquels ce bien est exposé sont disponibles sur le site Géorisques. https://www.georisques.gouv.fr

Diagnostic de performance énergétique


  • Non soumis au DPE

  • Information non communiquée par l'annonceur

    Cette annonce immobilière est rédigée sous la responsabilité de l’annonceur.

    Calculez vos mensualités


    calendar Created with Sketch.
    Vos mensualités
    Taux d'assurance non inclus
    ** Cette simulation est donnée à titre indicatif et n’a pas de valeur contractuelle. La mensualité est calculée sans assurance. Elle ne saurait être assimilée à une proposition commerciale. Elle est calculée sur des hypothèses en se basant sur les taux moyens proposés par les partenaires bancaires de CRESERFI
    calendar Created with Sketch.
    Vos mensualités
    Taux d'assurance non inclus
    ** Cette simulation est donnée à titre indicatif et n’a pas de valeur contractuelle. La mensualité est calculée sans assurance. Elle ne saurait être assimilée à une proposition commerciale. Elle est calculée sur des hypothèses en se basant sur les taux moyens proposés par les partenaires bancaires de CRESERFI
    435 000 €
    Appartement 77m2 à Saint-Malo
    En vente
    Achetez en toute confiance

    Appartement 77m2Saint-Malo

    vente
    435 000 €*
    Publiée le 04/02/2026
    logo

    I@D FRANCE
  • Afficher le téléphone
  • ...

    Vous ne trouvez pas votre bonheur ?

    Confiez nous votre recherche
    En poursuivant votre navigation sur ce site, vous acceptez l'utilisation de cookies afin de vous proposer des services adaptés à votre profil. En savoir plus