Retour à la liste
Photos

A propos de

Ref.1969754

Appartement
3 pièce(s)
2 chambre(s)
55m2

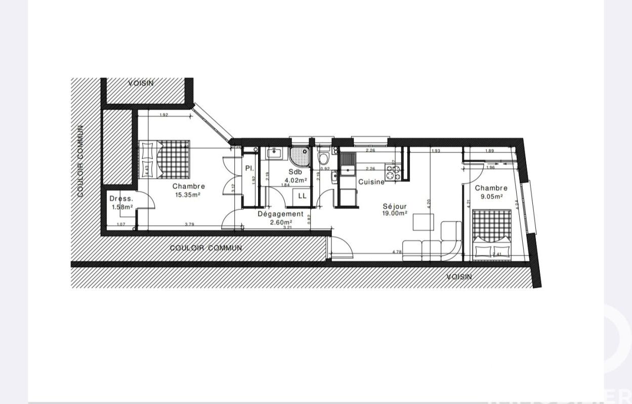
Iad France - Fatiha El Idrissi vous propose : 41 / 51 AVENUE PASTEUR Appartement Lumineux et Cosy - Idéal Investissement locatif ou jeune couple situé dans un quartier dynamique en plein essor à MOINS DE 5MIN A PIED DU METRO PORTE DES LILAS dans une résidence fermée et sécurisée au 1er étage avec ascenseur, bel appartement refait totalement à neuf comprenant : Une cuisine aménagée et équipée ouverte sur un COIN SÉJOUR, deux grandes chambres de 15 et 18 m² environ, une salle d'eau moderne et WC séparés. Il bénéficie d'une situation géographique stratégique à proximité des transports en commun, des commerces, des écoles et des espaces verts. CHAUFFAGE et EAU CHAUDE INDIVIDUELS ELECTRIQUEUne cave PAS DE PARKING. Double vitrage. Taxe fonciÚre : 1550 € Charges : 490€ trimestre La presente annonce immobiliere vise 2 lots situés dans une copropriété de 52 lots au total et ne faisant l'objet d'aucune procédure en cours citée à l'article L. 721-1 du code de la construction et de l'habitation. Montant moyen mensuel de charges déclaré par le vendeur : 163.33€ par mois (soit 1960 € annuel). Honoraires d'agence à la charge du vendeur. Information d'affichage énergétique sur ce bien : classe ENERGIE D indice 214 et classe CLIMAT B indice 6. Les informations sur les risques auxquels ce bien est exposé, y compris l'obligation légale de débroussaillement, sont disponibles sur le site Géorisques : http://www.georisques.gouv.fr.La présente annonce immobiliÚre a été rédigée sous la responsabilité éditoriale de Mme Fatiha El Idrissi mandataire indépendant en immobilier (sans détention de fonds), agent commercial de la SAS I@D France immatriculé au RSAC de CRETEIL sous le numéro 410 896 633, titulaire de la carte de démarchage immobilier pour le compte de la société I@D France SAS. (gedeon_6727_32348769)

Partager

* Honoraires à la charge du vendeur

Caractéristiques


Prestations intérieures
  • Pièce(s) : 3
  • Chambre(s) : 2
  • Chauffage : individuel électrique radiateur
Prestations extérieures
  • Accès handicapé : Non
  • Ascenseur : Oui
  • Digicode : Non
Informations sur le lot
  • Localisation : Les Lilas
  • Copropriété : Oui
  • Nombre de lots : 52
  • Montant annuel quote-part budget prévisionnel : 1960€
  • Aucune procédure n'est en cours

Géorisques

Les informations sur les risques auxquels ce bien est exposé sont disponibles sur le site Géorisques. https://www.georisques.gouv.fr

Diagnostic de performance énergétique


  • Diagnostics de performance énergétiques (DPE)
    D
    Consommation (énergie primaire)
    214
    kWh/m².an
    Emissions (énergie primaire)
    6
    kWh/m².an
    A B C D E F G logement extrêmement performant logement extrêmement peu performant
  • Émissions de gaz à effet de serre (GES)
    B
    Émissions GES (gaz à effet de serre)
    6
    kg CO2/m².an
    A B C D E F G logement peu émetteur de CO2 logement très émetteur de CO2
  • Date du DPE : 16/08/2021
    Montant estimé des dépenses annuelles d’énergie pour un usage standard entre 990.00€ et 1360.00€ par an. Prix moyens des énergies indexés en 24/03/2026 (abonnement compris)

    Cette annonce immobilière est rédigée sous la responsabilité de l’annonceur.

    Calculez vos mensualités


    calendar Created with Sketch.
    Vos mensualités
    Taux d'assurance non inclus
    ** Cette simulation est donnée à titre indicatif et n’a pas de valeur contractuelle. La mensualité est calculée sans assurance. Elle ne saurait être assimilée à une proposition commerciale. Elle est calculée sur des hypothèses en se basant sur les taux moyens proposés par les partenaires bancaires de CRESERFI
    calendar Created with Sketch.
    Vos mensualités
    Taux d'assurance non inclus
    ** Cette simulation est donnée à titre indicatif et n’a pas de valeur contractuelle. La mensualité est calculée sans assurance. Elle ne saurait être assimilée à une proposition commerciale. Elle est calculée sur des hypothèses en se basant sur les taux moyens proposés par les partenaires bancaires de CRESERFI
    370 000 €
    Appartement 55m2 à Les Lilas
    En vente
    Achetez en toute confiance

    Appartement 55m2Les Lilas

    vente
    370 000 €*
    Publiée le 21/12/2025

    IAD FRANCE
  • Afficher le téléphone
  • ...

    Vous ne trouvez pas votre bonheur ?

    Confiez nous votre recherche
    En poursuivant votre navigation sur ce site, vous acceptez l'utilisation de cookies afin de vous proposer des services adaptés à votre profil. En savoir plus