- 2
- 67
A propos de
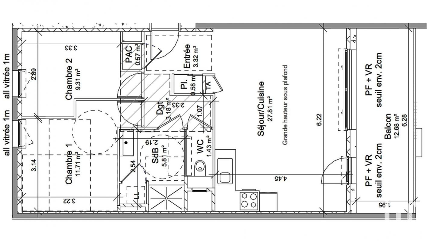
Iad France - Sarah RoziÚre (06 99 86 19 42) vous propose : Appartement T3 avec balcon à Vif. Située à Vif, à seulement 20 minutes de Grenoble, la résidence Le Pré des Libellules s'inscrit dans un environnement calme et verdoyant, au pied du massif du Vercors. Entre nature préservée et proximité des commodités, cette adresse d'exception offre un cadre de vie harmonieux entre ville et montagne. Livraison prévue en 2026. D'une surface de 61 m² environ, cet appartement T3 situé au 2 Úme étage se prolonge par un balcon de 11 m² environ. Il comprend une piÚce de vie de 26 m² environ avec cuisine ouverte, deux chambres confortables et une salle d'eau moderne. Un box privatif et une place de stationnement extérieure complÚtent le bien. Le chauffage, le rafraîchissement et la production d'eau chaude sont assurés par une pompe à chaleur réversible, garantissant confort et performance énergétique. AUTRES T3 DISPONIBLES À PARTIR DE 252 400 € - Plans et demande d'informations sur simple contact. Nichée dans un cadre paisible et verdoyant, la résidence Le Pré des Libellules se compose de petits bâtiments à taille humaine, parfaitement intégrés à leur environnement naturel. Elle a été conçue pour offrir un cadre de vie agréable et fonctionnel, avec des beaux espaces extérieurs, des stationnements sécurisés et un environnement résidentiel calme, tout en restant proche du centre-ville. Les résidents bénéficient d'une situation privilégiée : le centre-ville et ses commerces à 5 minutes à pied, les écoles maternelles et collÚge à proximité, ainsi qu'un supermarché, un marché local et un parc public accessibles en quelques minutes. Les bus TAG et la gare TER permettent de rejoindre Grenoble en une vingtaine de minutes. Acheter dans le neuf, c'est bénéficier de frais de notaire réduits, de garanties constructeur et d'un logement répondant aux derniÚres normes thermiques et acoustiques. Vous pouvez également personnaliser certains aménagements selon vos envies. Vous pouvez me contacter dÚs maintenant pour recevoir le plan détaillé, obtenir plus d'informations ou bénéficier d'un accompagnement personnalisé. Honoraires d'agence à la charge du vendeur. Bien non soumis au DPE. Les informations sur les risques auxquels ce bien est exposé sont disponibles sur le site Géorisques : www.georisques.gouv.fr. La présente annonce immobiliÚre a été rédigée sous la responsabilité éditoriale de Mlle Sarah RoziÚre EI (ID 83696), mandataire indépendant en immobilier (sans détention de fonds), agent commercial de la SAS I@D France immatriculé au RSAC de Clermont-Ferrand sous le numéro 978616993, titulaire de la carte de démarchage immobilier pour le compte de la société I@D France SAS. Retrouvez tous nos biens sur notre site internet. www.iadfrance.fr. (gedeon_6727_31999545)
* Honoraires à la charge du vendeur
Caractéristiques
Prestations intérieures
- Pièce(s) : 3
- Chambre(s) : 2
Prestations extérieures
- Accès handicapé : Non
- Ascenseur : Oui
- Digicode : Non
- Parking : 1
- Balcon : 1
- Surface : m2
Informations sur le lot
- Localisation : Vif
- Aucune procédure n'est en cours
Géorisques
Les informations sur les risques auxquels ce bien est exposé sont disponibles sur le site Géorisques. https://www.georisques.gouv.frDiagnostic de performance énergétique
Non soumis au DPE
Information non communiquée par l'annonceur
Cette annonce immobilière est rédigée sous la responsabilité de l’annonceur.
Biens immobiliers similaires
Calculez vos mensualités
Vos mensualités
Appartement 61m2Vif
IAD FRANCE