- 1
- 30
A propos de
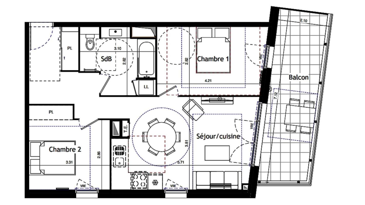
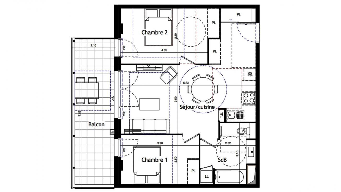
Iad France - Sarah Rozière (06 99 86 19 42) vous propose : Appartement T3 avec balcon à Valras-Plage. Située chemin de l'Oranger, à seulement 150 mètres de la plage, la résidence contemporaine Les Embruns conjugue élégance architecturale et qualité de vie préservée. Entre mer et nature, cette adresse offre un cadre de vie authentique, paisible et lumineux au cOEur de Valras-Plage, charmante station balnéaire à taille humaine. Disponible 2027. Un appartement raffiné : Situé au 1 er étage, cet appartement T3 de 59 m² environ habitables se prolonge par un balcon de 16 m² environ.- Séjour / cuisine de 29 m² environ.- Deux chambres confortables.- Salle de bains moderne équipée.- Annexe incluse : deux parkings extérieurs. De belles prestations : - Volets roulants électriques et menuiseries PVC double vitrage pour une isolation renforcée.- Chauffage électrique individuel et ballon thermodynamique collectif pour l'eau chaude sanitaire.- Résidence sécurisée avec accès par digicode et local à vélos sécurisé. L'art de vivre à Valras-Plage : - À 150 m de la plage et 5 minutes à pied des Halles Marty.- Commerces, restaurants et port de plaisance accessibles à pied.- Environnement préservé entre les dunes des Orpellières et le littoral méditerranéen.- Transports beeMob vers Béziers et navette gratuite en saison.- Station balnéaire vivante toute l'année, conjuguant authenticité et modernité. N'hésitez pas à me contacter pour plus d'informations ou pour un accompagnement sur mesure. Honoraires d'agence à la charge du vendeur. Bien non soumis au DPE. Les informations sur les risques auxquels ce bien est exposé sont disponibles sur le site Géorisques : www.georisques.gouv.fr. La présente annonce immobilière a été rédigée sous la responsabilité éditoriale de Mlle Sarah Rozière EI (ID 83696), mandataire indépendant en immobilier (sans détention de fonds), agent commercial de la SAS I@D France immatriculé au RSAC de Clermont-Ferrand sous le numéro 978616993, titulaire de la carte de démarchage immobilier pour le compte de la société I@D France SAS. Retrouvez tous nos biens sur notre site internet. www.iadfrance.fr.Informations LOI ALUR : Honoraires charge vendeur. (gedeon_6727_32032075)
* Honoraires à la charge du vendeur
Caractéristiques
Prestations intérieures
- Pièce(s) : 3
- Chambre(s) : 2
- Chauffage : individuel électrique radiateur
Prestations extérieures
- Accès handicapé : Non
- Ascenseur : Oui
- Digicode : Non
- Parking : 1
- Balcon : 1
- Surface : m2
Informations sur le lot
- Localisation : Valras-Plage
- Aucune procédure n'est en cours
Géorisques
Les informations sur les risques auxquels ce bien est exposé sont disponibles sur le site Géorisques. https://www.georisques.gouv.frDiagnostic de performance énergétique
Non soumis au DPE
Information non communiquée par l'annonceur
Cette annonce immobilière est rédigée sous la responsabilité de l’annonceur.
Biens immobiliers similaires
Calculez vos mensualités
Vos mensualités
Appartement 58m2Valras-Plage
IAD FRANCE