Retour à la liste
Exclusivité
Nouveau depuis 18 heures
Photos
Carte

A propos de

Ref.860310

Appartement
3 pièce(s)
2 chambre(s)
62m2

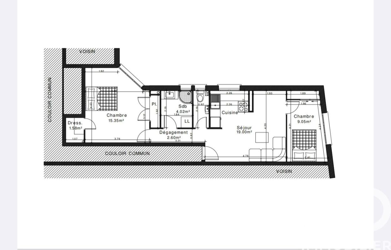
Iad France - Gregoire Hieaux vous propose : Les Lilas - 3 pièces lumineux avec balcon, box et caveRue de la Convention à 7 minutes à pieds du métro et 5 minutes des commerces, découvrez ce 3 pièces de 62 m², traversant et particulièrement lumineux. Il se compose d'un agréable séjour de 17 m² exposé plein sud ouvrant sur un balcon, de deux chambres, d'une cuisine dînatoire de 10 m², d'une salle d'eau et de wc séparés. Cet appartement particulièrement calme offre un cadre de vie idéal pour un projet familial. Bon état général avec rafraîchissement décoratif à prévoir pour le mettre aux goûts du jour. Un box et une cave en sous-sol complètent ce bien. À visiter sans tarder ! La presente annonce immobiliere vise 3 lots situés dans une copropriété de 297 lots au total et ne faisant l'objet d'aucune procédure en cours citée à l'article L. 721-1 du code de la construction et de l'habitation. Montant moyen mensuel de charges déclaré par le vendeur : 283.33€ par mois (soit 3400 € annuel). Honoraires d'agence à la charge du vendeur. Information d'affichage énergétique sur ce bien : classe ENERGIE E indice 245 et classe CLIMAT E indice 51. Les informations sur les risques auxquels ce bien est exposé, y compris l'obligation légale de débroussaillement, sont disponibles sur le site Géorisques : http://www.georisques.gouv.fr.La présente annonce immobilière a été rédigée sous la responsabilité éditoriale de M Gregoire Hieaux mandataire indépendant en immobilier (sans détention de fonds), agent commercial de la SAS I@D France immatriculé au RSAC de BOBIGNY sous le numéro 844245423, titulaire de la carte de démarchage immobilier pour le compte de la société I@D France SAS.Informations LOI ALUR : Soumis au régime de copropriété. Nombre de lots : 297. Quote part annuelle(moyenne) : 3400 euros. Honoraires charge vendeur. (gedeon_6727_32988420)

Partager

* Honoraires à la charge du vendeur

Caractéristiques


Prestations intérieures
  • Pièce(s) : 3
  • Chambre(s) : 2
  • Chauffage : collectif gaz radiateur
Prestations extérieures
  • Accès handicapé : Non
  • Ascenseur : Oui
  • Digicode : Non
  • Balcon : 2
  • Surface : m2
Informations sur le lot
  • Localisation : Les Lilas
  • Année de construction : 1968
  • Copropriété : Oui
  • Nombre de lots : 297
  • Montant annuel quote-part budget prévisionnel : 3400€
  • Aucune procédure n'est en cours

Géorisques

Les informations sur les risques auxquels ce bien est exposé sont disponibles sur le site Géorisques. https://www.georisques.gouv.fr

Diagnostic de performance énergétique


  • Diagnostics de performance énergétiques (DPE)
    E
    Consommation (énergie primaire)
    245
    kWh/m².an
    Emissions (énergie primaire)
    51
    kWh/m².an
    A B C D E F G logement extrêmement performant logement extrêmement peu performant
  • Émissions de gaz à effet de serre (GES)
    E
    Émissions GES (gaz à effet de serre)
    51
    kg CO2/m².an
    A B C D E F G logement peu émetteur de CO2 logement très émetteur de CO2
  • Date du DPE : 30/03/2026
    Montant estimé des dépenses annuelles d’énergie pour un usage standard entre 1260.00€ et 1750.00€ par an. Prix moyens des énergies indexés en 11/04/2026 (abonnement compris)

    Cette annonce immobilière est rédigée sous la responsabilité de l’annonceur.

    Calculez vos mensualités


    calendar Created with Sketch.
    Vos mensualités
    Taux d'assurance non inclus
    ** Cette simulation est donnée à titre indicatif et n’a pas de valeur contractuelle. La mensualité est calculée sans assurance. Elle ne saurait être assimilée à une proposition commerciale. Elle est calculée sur des hypothèses en se basant sur les taux moyens proposés par les partenaires bancaires de CRESERFI
    calendar Created with Sketch.
    Vos mensualités
    Taux d'assurance non inclus
    ** Cette simulation est donnée à titre indicatif et n’a pas de valeur contractuelle. La mensualité est calculée sans assurance. Elle ne saurait être assimilée à une proposition commerciale. Elle est calculée sur des hypothèses en se basant sur les taux moyens proposés par les partenaires bancaires de CRESERFI
    400 000 €
    Appartement 62m2 à Les Lilas
    En vente
    Achetez en toute confiance

    Appartement 62m2Les Lilas

    vente
    400 000 €*
    Publiée le 11/04/2026

    IAD FRANCE
  • Afficher le téléphone
  • ...

    Vous ne trouvez pas votre bonheur ?

    Confiez nous votre recherche
    En poursuivant votre navigation sur ce site, vous acceptez l'utilisation de cookies afin de vous proposer des services adaptés à votre profil. En savoir plus