Retour à la liste
Nouveau depuis 5 heures
Photos

A propos de

Ref.1950783

Appartement
3 pièce(s)
2 chambre(s)
59m2

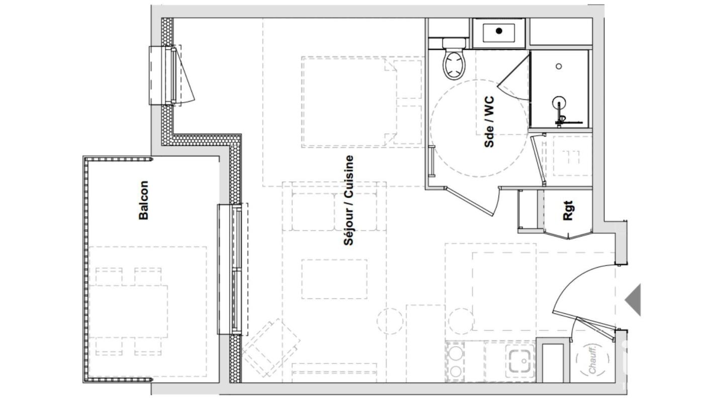
Iad France - Cyrille Figureau (07 67 91 82 91) vous propose : Riom - T3 avec terrasse dans écoquartier nouvelle générationAu sein des Rives de l'Ambène, découvre ce 3 pièces d'environ 60 m² environ situé au 1er étage d'un petit bâtiment à taille humaine, au cOEur du nouvel écoquartier de Riom. L'entrée dessert un séjour / cuisine de belle surface, facile à meubler, qui s'ouvre par de larges portes-fenêtres sur une terrasse profonde d'environ 9 m² environ. On y prend le café le matin, on y dîne l'été en profitant de la vue sur les espaces paysagers du quartier. Le coin nuit est clairement séparé, avec deux chambres de bonnes dimensions, proches de la salle de bains / WC. Un placard à l'entrée vient compléter les rangements. Le plan est simple, efficace, sans perte d'espace : idéal pour un premier achat ou un couple avec un jeune enfant. Le bâtiment se distingue par sa conception écologique : structure bois / paille, isolation renforcée, menuiseries à triple vitrage, architecture bioclimatique. Résultat concret pour toi : une température agréable hiver comme été, des consommations de chauffage fortement réduites et un confort acoustique supérieur. Tu habites un logement sobre en énergie, déjà aux standards de demain. À quelques minutes à vélo du centre-bourg, à deux pas de la gare de Riom-Châtel-Guyon et du nouveau parc de 3 hectares, tu profites d'un environnement vert tout en restant parfaitement connecté à Clermont-Ferrand et aux grands axes. Un appartement prêt à vivre, dans un quartier en pleine montée en gamme, pensé pour concilier qualité de vie et économies d'énergie. Plan disponible sur demande - Frais de notaire réduits. Honoraires d'agence à la charge du vendeur. Bien non soumis au DPE. Les informations sur les risques auxquels ce bien est exposé sont disponibles sur le site Géorisques : www.georisques.gouv.fr. La présente annonce immobilière a été rédigée sous la responsabilité éditoriale de M. Cyrille Figureau EI (ID 76688), mandataire indépendant en immobilier (sans détention de fonds), agent commercial de la SAS I@D France immatriculé au RSAC de Clermont -Ferrand sous le numéro 521703322, titulaire de la carte de démarchage immobilier pour le compte de la société I@D France SAS. Retrouvez tous nos biens sur notre site internet. www.iadfrance.fr. (gedeon_6727_32176482)

Partager

* Honoraires à la charge du vendeur

Caractéristiques


Prestations intérieures
  • Pièce(s) : 3
  • Chambre(s) : 2
Prestations extérieures
  • Accès handicapé : Non
  • Ascenseur : Non
  • Digicode : Non
  • Balcon : 1
  • Surface : m2
Informations sur le lot
  • Localisation : Riom
  • Aucune procédure n'est en cours

Géorisques

Les informations sur les risques auxquels ce bien est exposé sont disponibles sur le site Géorisques. https://www.georisques.gouv.fr

Diagnostic de performance énergétique


  • Non soumis au DPE

  • Information non communiquée par l'annonceur

    Cette annonce immobilière est rédigée sous la responsabilité de l’annonceur.

    Calculez vos mensualités


    calendar Created with Sketch.
    Vos mensualités
    Taux d'assurance non inclus
    ** Cette simulation est donnée à titre indicatif et n’a pas de valeur contractuelle. La mensualité est calculée sans assurance. Elle ne saurait être assimilée à une proposition commerciale. Elle est calculée sur des hypothèses en se basant sur les taux moyens proposés par les partenaires bancaires de CRESERFI
    calendar Created with Sketch.
    Vos mensualités
    Taux d'assurance non inclus
    ** Cette simulation est donnée à titre indicatif et n’a pas de valeur contractuelle. La mensualité est calculée sans assurance. Elle ne saurait être assimilée à une proposition commerciale. Elle est calculée sur des hypothèses en se basant sur les taux moyens proposés par les partenaires bancaires de CRESERFI
    191 000 €
    Appartement 59m2 à Riom
    En vente
    Achetez en toute confiance

    Appartement 59m2Riom

    vente
    191 000 €*
    Publiée le 11/04/2026

    IAD FRANCE
  • Afficher le téléphone
  • ...

    Vous ne trouvez pas votre bonheur ?

    Confiez nous votre recherche
    En poursuivant votre navigation sur ce site, vous acceptez l'utilisation de cookies afin de vous proposer des services adaptés à votre profil. En savoir plus