- 1
- 41
Nouveau depuis 3 jours
A propos de
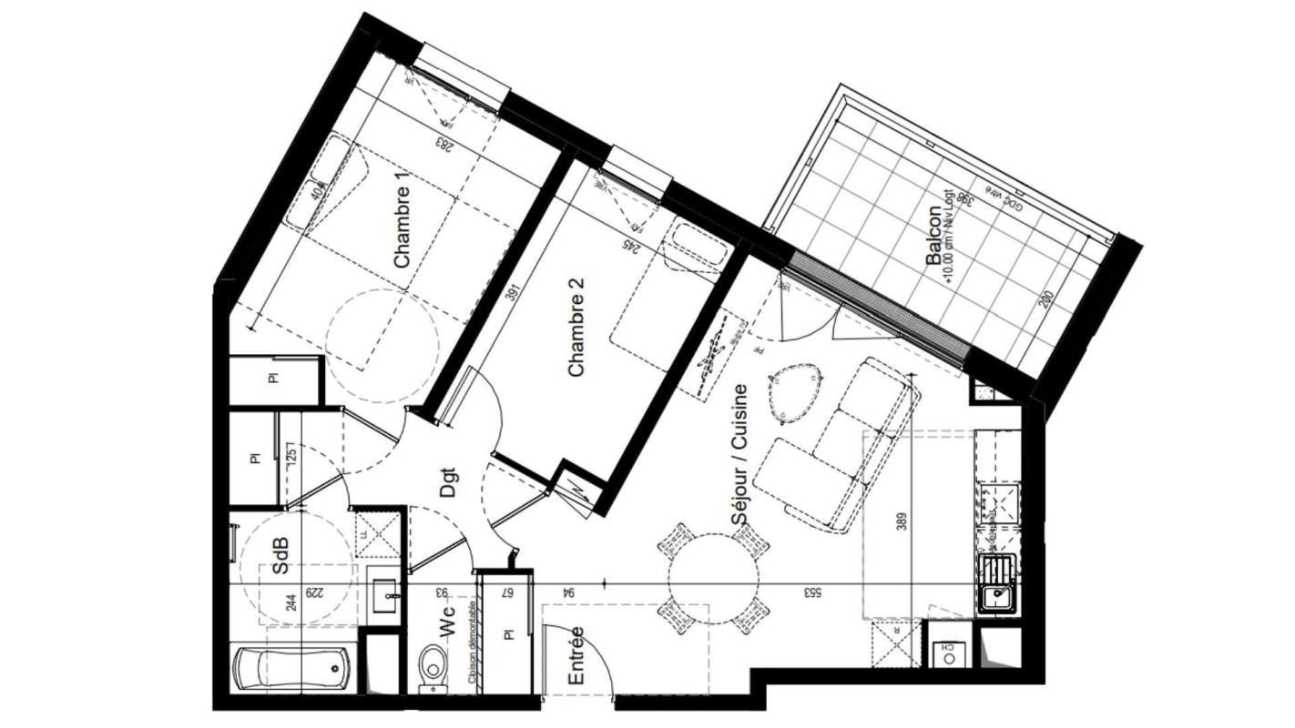
Iad France - Sarah Rozière (06 99 86 19 42) vous propose : Appartement T3 avec balcon à Saint-Malo. Située boulevard des Talards, au cOEur d'un environnement dynamique et parfaitement connecté, la résidence contemporaine Port Vauban conjugue élégance architecturale et confort de vie. À proximité immédiate de la gare, des commerces, des plages et des équipements culturels, cette adresse offre un cadre agréable à seulement quelques minutes d'Intra-Muros. Un appartement raffiné : Situé au 3 ème étage, cet appartement T3 de 61 m² environ habitables se prolonge par un balcon de 8 m² environ.- Séjour / cuisine de 24 m² environ.- Deux chambres confortables.- Salle de bain moderne.- Annexes incluses : un parking en sous-sol. De belles prestations : - Menuiseries PVC gris foncé avec double vitrage isolant. - Résidence sécurisée avec contrôle d'accès Vigik et visiophone.- Espaces verts aménagés et voie verte au pied de la résidence. L'art de vivre à Saint-Malo : - À proximité immédiate du cOEur du Grand Saint-Malo.- À 10 minutes à pied des plages et de la côte d'Émeraude.- À deux pas de la gare TGV (2h17 de Paris).- Commerces, restaurants, médiathèque, écoles et équipements sportifs accessibles à pied.- Environnement urbain rénové et voie verte traversant toute la ville. N'hésitez pas à me contacter pour plus d'informations ou pour un accompagnement sur mesure. Honoraires d'agence à la charge du vendeur. Bien non soumis au DPE. Les informations sur les risques auxquels ce bien est exposé sont disponibles sur le site Géorisques : www.georisques.gouv.fr. La présente annonce immobilière a été rédigée sous la responsabilité éditoriale de Mlle Sarah Rozière EI (ID 83696), mandataire indépendant en immobilier (sans détention de fonds), agent commercial de la SAS I@D France immatriculé au RSAC de Clermont-Ferrand sous le numéro 978616993, titulaire de la carte de démarchage immobilier pour le compte de la société I@D France SAS. Retrouvez tous nos biens sur notre site internet. www.iadfrance.fr. (gedeon_6727_32191200)
* Honoraires à la charge du vendeur
Caractéristiques
Prestations intérieures
- Pièce(s) : 3
- Chambre(s) : 2
- Chauffage : individuel électrique radiateur
Prestations extérieures
- Accès handicapé : Non
- Ascenseur : Oui
- Digicode : Non
- Parking : 1
- Balcon : 1
- Surface : m2
Informations sur le lot
- Localisation : Saint-Malo
- Aucune procédure n'est en cours
Géorisques
Les informations sur les risques auxquels ce bien est exposé sont disponibles sur le site Géorisques. https://www.georisques.gouv.frDiagnostic de performance énergétique
Non soumis au DPE
Information non communiquée par l'annonceur
Cette annonce immobilière est rédigée sous la responsabilité de l’annonceur.
Biens immobiliers similaires
Calculez vos mensualités
Vos mensualités
Appartement 61m2Saint-Malo
IAD FRANCE