Retour à la liste
Exclusivité
Nouveau depuis 4 heures
Photos
Carte

A propos de

Ref.2000544

Appartement
1 pièce(s)
1 chambre(s)
27m2

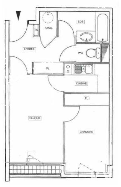
Iad France - Julia Nascimento vous propose : EN EXCLUSIVITÉ - Appartement de 27,15 m², Pantin / Les Lilas, situé dans le quartier très prisé de Pantin, limite Les Lilas, au calme, au sein d'une charmante rue pavillonnaire. À seulement 8 minutes à pied du métro Mairie des Lilas et du centre-ville des Lilas, il combine tranquillité et praticité. Entièrement rénové, ce bien se distingue par son style industriel, sa luminosité et son agencement parfaitement optimisé. Le sol en terrazzo côté cuisine et salle d'eau, associé au parquet en chêne dans la pièce de vie, apporte élégance et caractère à l'ensemble. L'appartement offre un véritable coin cuisine ouvert, un espace salon, un coin salle à manger et un espace nuit, le tout pensé pour exploiter au mieux chaque mètre carré. À l'origine un deux-pièces, il reste possible de recréer une chambre séparée si vous le souhaitez. La belle hauteur sous plafond renforce son esprit loft, apportant volume et lumière à l'ensemble. La cuisine ouverte est fonctionnelle et bien équipée avec four, plaque, hotte et lave-linge encastré, et bénéficie de rangements astucieux tirant parti de la hauteur sous plafond. Les fenêtres sont en double vitrage avec volets. L'appartement dispose également d'une cour en jouissance, parfaite pour profiter d'un espace extérieur. Une cave complète le bien, offrant un espace de rangement supplémentaire. Le tout se trouve dans une petite copropriété à faibles charges, au sein d'un immeuble plein de charme. Un bien unique qui combine emplacement privilégié, rénovation de qualité, optimisation de l'espace, luminosité et calme, idéal pour un premier achat ou un investissement. La presente annonce immobiliere vise 2 lots situés dans une copropriété de 9 lots au total et ne faisant l'objet d'aucune procédure en cours citée à l'article L. 721-1 du code de la construction et de l'habitation. Montant moyen mensuel de charges déclaré par le vendeur : 77€ par mois (soit 924 € annuel). Honoraires d'agence à la charge du vendeur. Information d'affichage énergétique sur ce bien : classe ENERGIE G indice 496 et classe CLIMAT C indice 19. Les informations sur les risques auxquels ce bien est exposé, y compris l'obligation légale de débroussaillement, sont disponibles sur le site Géorisques : http://www.georisques.gouv.fr.La présente annonce immobilière a été rédigée sous la responsabilité éditoriale de Mme Julia Nascimento mandataire indépendant en immobilier (sans détention de fonds), agent commercial de la SAS I@D France immatriculé au RSAC de CRETEIL sous le numéro 823204326, titulaire de la carte de démarchage immobilier pour le compte de la société I@D France SAS. (gedeon_6727_32693094)

Partager

* Honoraires à la charge du vendeur

Caractéristiques


Prestations intérieures
  • Pièce(s) : 1
  • Chambre(s) : 1
  • Chauffage : individuel électrique
Prestations extérieures
  • Accès handicapé : Non
  • Ascenseur : Non
  • Digicode : Non
Informations sur le lot
  • Localisation : Pantin
  • Année de construction : 1940
  • Copropriété : Oui
  • Nombre de lots : 9
  • Montant annuel quote-part budget prévisionnel : 924€
  • Aucune procédure n'est en cours

Géorisques

Les informations sur les risques auxquels ce bien est exposé sont disponibles sur le site Géorisques. https://www.georisques.gouv.fr

Diagnostic de performance énergétique


  • Diagnostics de performance énergétiques (DPE)
    G
    Consommation (énergie primaire)
    496
    kWh/m².an
    Emissions (énergie primaire)
    19
    kWh/m².an
    A B C D E F G logement extrêmement performant logement extrêmement peu performant
  • Émissions de gaz à effet de serre (GES)
    C
    Émissions GES (gaz à effet de serre)
    19
    kg CO2/m².an
    A B C D E F G logement peu émetteur de CO2 logement très émetteur de CO2
  • Date du DPE : 14/01/2026
    Montant estimé des dépenses annuelles d’énergie pour un usage standard entre 1410.00€ et 1950.00€ par an. Prix moyens des énergies indexés en 11/04/2026 (abonnement compris)

    Cette annonce immobilière est rédigée sous la responsabilité de l’annonceur.

    Calculez vos mensualités


    calendar Created with Sketch.
    Vos mensualités
    Taux d'assurance non inclus
    ** Cette simulation est donnée à titre indicatif et n’a pas de valeur contractuelle. La mensualité est calculée sans assurance. Elle ne saurait être assimilée à une proposition commerciale. Elle est calculée sur des hypothèses en se basant sur les taux moyens proposés par les partenaires bancaires de CRESERFI
    calendar Created with Sketch.
    Vos mensualités
    Taux d'assurance non inclus
    ** Cette simulation est donnée à titre indicatif et n’a pas de valeur contractuelle. La mensualité est calculée sans assurance. Elle ne saurait être assimilée à une proposition commerciale. Elle est calculée sur des hypothèses en se basant sur les taux moyens proposés par les partenaires bancaires de CRESERFI
    207 500 €
    Appartement 27m2 à Pantin
    En vente
    Achetez en toute confiance

    Appartement 27m2Pantin

    vente
    207 500 €*
    Publiée le 11/04/2026

    IAD FRANCE
  • Afficher le téléphone
  • ...

    Vous ne trouvez pas votre bonheur ?

    Confiez nous votre recherche
    En poursuivant votre navigation sur ce site, vous acceptez l'utilisation de cookies afin de vous proposer des services adaptés à votre profil. En savoir plus