Retour à la liste
Nouveau depuis 4 heures
Photos
Vidéo
Carte

A propos de

Ref.191717

Duplex
4 pièce(s)
3 chambre(s)
138m2

CHARME - ENVIRONNEMENT BUCOLIQUE ET CALME - A DEUX PAS DE LA GARE - GRAND JARDIN COMMUN - ENTIEREMENT RENOVE -

COUP DE COEUR ASSURE!

Amandine ANDRE et EFFICITY, l'agence qui estime gratuitement vos biens en ligne, vous proposent ce SUPERBE DUPLEX situé à proximité immédiate de la gare de ST GERMAIN AU MONT D'OR.

Issu d'un ancien corps de ferme ENTIEREMENT REHABILITE, ce lot allie le charme du bâti ancien et un cadre verdoyant très agréable.

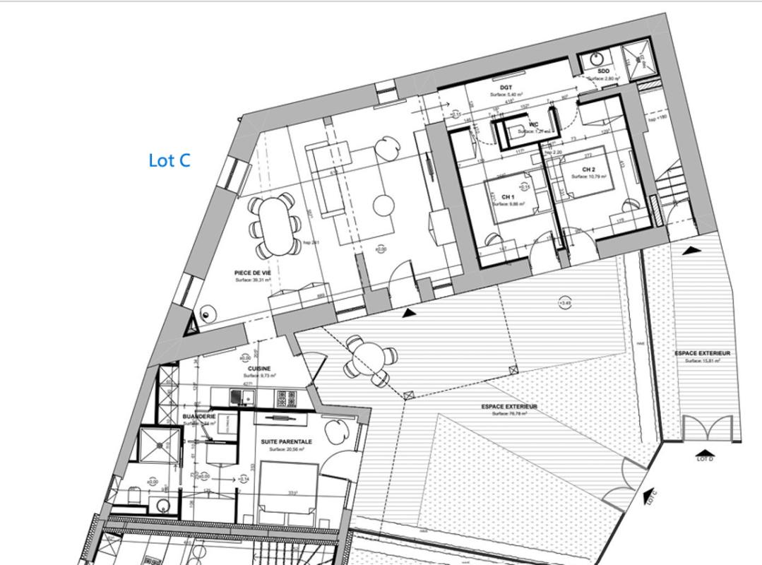
Ce duplex de 115m2 carrez et 138m2 habitables se présente comme suit:

- Au RDC, une superbe pièce à vivre de 64m2 avec un espace prévu pour la cuisine, un séjour avec espace salon et salle à manger, une buanderie de 6.5m2 et un WC séparé.
- A l'étage, 2 chambres (17 et 15 m2) ainsi qu'une suite parentale de 23m2 avec sa salle d'eau et son dressing, puis une salle de bain de 5m2.

Un extérieur privatif et clôturé avec terrasse et jardinet, de 71m2 complète le bien.

2 places de stationnements sont prévues également.

La petite copropriété sera composée de 4 lots, chacun avec ses 2 places de stationnements.

En plus de prestations de qualités pour votre habitation, vous bénéficierez d'un superbe cadre, entouré de verdure, au calme, avec l'accès au jardin commun et sa petite marre sécurisée qui sera un lieu de repos idéal!
Gare à proximité immédiate.

Disponible 3e semestre 2026

POSSIBILITE IMMEDIATE DE VENTE EN PLATEAU BRUT! Laissez libre court à votre imagination!

Pour plus de renseignements, n'hésitez pas à contacter Amandine ANDRE au 06.25.36.86.43 ou par mail à aandre@efficity.com.
Les informations sur les risques auxquels ce bien est exposé sont disponibles sur le site Georisque : georisques. gouv. fr
Amandine André - EI - est Agent Commercial mandataire en immobilier, immatriculé au Registre Spécial des Agents Commerciaux du Tribunal de Commerce de Bourg en Bresse sous le n°753350123.
Siège social du mandant : effiCity, 48 avenue de Villiers - 75017 PARIS - Société par Actions Simplifiée, société au capital de 132 373,05 euros, immatriculée au RCS Paris 497 617 746 et titulaire de la Carte professionnelle CPI 7501 2015 000 002 025 - CCI Paris IDF - Caisse de Garantie : GALIAN Assurances 89 rue de la Boétie 75008 Paris

Partager

* Honoraires à la charge du vendeur

Caractéristiques


Prestations intérieures
  • Pièce(s) : 4
  • Chambre(s) : 3
  • Salle(s) de bain(s) : 1
  • Chauffage : individuel électrique
  • WC : 2
Prestations extérieures
  • Accès handicapé : 1
  • Ascenseur : Non
  • Digicode : Non
  • Parking : 2
  • Terrasse : Oui
Informations sur le lot
  • Localisation : Saint-Germain-au-Mont-d'Or
  • Année de construction : 2026
  • Copropriété : Oui
  • Nombre de lots : 4
  • Montant annuel quote-part budget prévisionnel : 360€
  • Aucune procédure n'est en cours

Géorisques

Les informations sur les risques auxquels ce bien est exposé sont disponibles sur le site Géorisques. https://www.georisques.gouv.fr

Diagnostic de performance énergétique


  • Diagnostics de performance énergétiques (DPE)
    A
    Consommation (énergie primaire)
    46
    kWh/m².an
    Emissions (énergie primaire)
    1
    kWh/m².an
    A B C D E F G logement extrêmement performant logement extrêmement peu performant
  • Émissions de gaz à effet de serre (GES)
    A
    Émissions GES (gaz à effet de serre)
    1
    kg CO2/m².an
    A B C D E F G logement peu émetteur de CO2 logement très émetteur de CO2
  • Date du DPE : 23/08/2025
    Montant estimé des dépenses annuelles d’énergie pour un usage standard entre 540.00€ et 670.00€ par an. Prix moyens des énergies indexés en 01/01/2024 (abonnement compris)

    Cette annonce immobilière est rédigée sous la responsabilité de l’annonceur.

    Calculez vos mensualités


    calendar Created with Sketch.
    Vos mensualités
    Taux d'assurance non inclus
    ** Cette simulation est donnée à titre indicatif et n’a pas de valeur contractuelle. La mensualité est calculée sans assurance. Elle ne saurait être assimilée à une proposition commerciale. Elle est calculée sur des hypothèses en se basant sur les taux moyens proposés par les partenaires bancaires de CRESERFI
    calendar Created with Sketch.
    Vos mensualités
    Taux d'assurance non inclus
    ** Cette simulation est donnée à titre indicatif et n’a pas de valeur contractuelle. La mensualité est calculée sans assurance. Elle ne saurait être assimilée à une proposition commerciale. Elle est calculée sur des hypothèses en se basant sur les taux moyens proposés par les partenaires bancaires de CRESERFI
    590 000 €
    Duplex 138m2 à Saint-Germain-au-Mont-d'Or
    En vente
    Achetez en toute confiance

    Duplex 138m2Saint-Germain-au-Mont-d'Or

    vente
    590 000 €*
    Publiée le 08/04/2026

    RESEAU EFFICITY
  • Afficher le téléphone
  • ...

    Vous ne trouvez pas votre bonheur ?

    Confiez nous votre recherche
    En poursuivant votre navigation sur ce site, vous acceptez l'utilisation de cookies afin de vous proposer des services adaptés à votre profil. En savoir plus