Retour à la liste
Nouveau depuis 2 heures
Photos

A propos de

Ref.1193357

Terrain
472m2

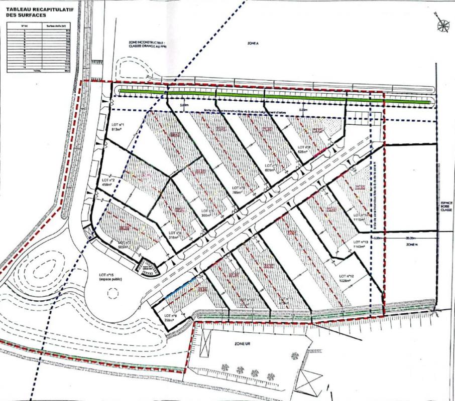
Iad France - JérÎme GUYOT (06 60 28 10 03) vous propose : TERRAIN A BÂTIR a vendre dans la commune de VALMONT. Dans le cadre de l'aménagement d'un lotissement de 14 lots de terrains à bâtir, 5 lots sont disponibles à acheter entiÚrement viabilisés de 318 m² environ à 472 m² environ. Pour chaque lot : - Viabilisation des parcelles pour l'ensemble des réseaux ( électricité, télécommunications, AEP, eaux usées et pluviales) avec intégration des coffrets électriques dans la clÎture et la haie.- Fourniture d'une cuve béton de récupération des eaux de pluies- Fourniture et pose d'une clÎture et haie entre les limites privées et public de chaque parcelle.- Fourniture et pose d'un portail.-Entrée charretiÚre en béton. Me contacter par téléphone pour vous positionner. Pas sérieux s'abstenir. Honoraires d'agence à la charge du vendeur. Bien non soumis au DPE. Les informations sur les risques auxquels ce bien est exposé sont disponibles sur le site Géorisques : www.georisques.gouv.fr. La présente annonce immobiliÚre a été rédigée sous la responsabilité éditoriale de M. JérÎme GUYOT EI (ID 22706), mandataire indépendant en immobilier (sans détention de fonds), agent commercial de la SAS I@D France immatriculé au RSAC de LE HAVRE sous le numéro 828520049, titulaire de la carte de démarchage immobilier pour le compte de la société I@D France SAS. Retrouvez tous nos biens sur notre site internet. www.iadfrance.fr.Informations LOI ALUR : Honoraires charge vendeur. (gedeon_6727_25757075)

Partager

* Honoraires à la charge du vendeur

Diagnostic de performance énergétique


  • Non soumis au DPE

  • Information non communiquée par l'annonceur

    Cette annonce immobilière est rédigée sous la responsabilité de l’annonceur.

    Biens immobiliers similaires


    Calculez vos mensualités


    calendar Created with Sketch.
    Vos mensualités
    Taux d'assurance non inclus
    ** Cette simulation est donnée à titre indicatif et n’a pas de valeur contractuelle. La mensualité est calculée sans assurance. Elle ne saurait être assimilée à une proposition commerciale. Elle est calculée sur des hypothèses en se basant sur les taux moyens proposés par les partenaires bancaires de CRESERFI
    calendar Created with Sketch.
    Vos mensualités
    Taux d'assurance non inclus
    ** Cette simulation est donnée à titre indicatif et n’a pas de valeur contractuelle. La mensualité est calculée sans assurance. Elle ne saurait être assimilée à une proposition commerciale. Elle est calculée sur des hypothèses en se basant sur les taux moyens proposés par les partenaires bancaires de CRESERFI
    74 200 €
    Terrain 472m2 à Valmont
    En vente
    Achetez en toute confiance

    Terrain 472m2Valmont

    vente
    74 200 €*
    Publiée le 31/03/2026

    IAD FRANCE
  • Afficher le téléphone
  • ...

    Vous ne trouvez pas votre bonheur ?

    Confiez nous votre recherche
    En poursuivant votre navigation sur ce site, vous acceptez l'utilisation de cookies afin de vous proposer des services adaptés à votre profil. En savoir plus