Retour à la liste
Exclusivité
Nouveau depuis 12 heures
Photos
Carte

A propos de

Ref.856160

Appartement
3 pièce(s)
2 chambre(s)
58m2

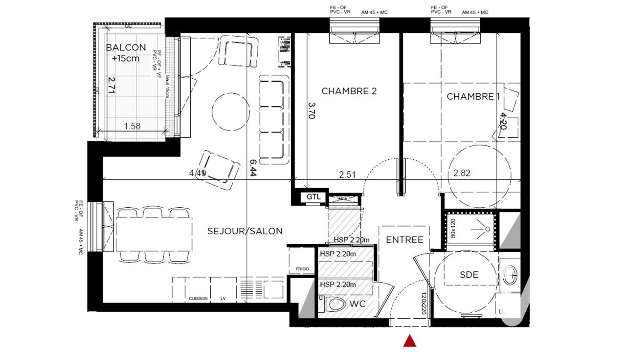
Iad France - Frédéric Lemaire vous propose : En Exclusivité, opportunité appartement T3 comme neuf revendu pour mutation professionnelle, trÚs faibles charges, de 58 m² au 2Úme étage, 2 chambres, avec balcon, garage privatif couvert, au calme, et idéalement situé dans les hauts de St- Aubin, au sein d'une résidence de 2023 et présentant de vrais atouts évidents : 1/ Environnement et extérieurs : - Plateau des Capucins des Hauts de Saint-Aubin.- Arrêt tramway hauts de Saint-Aubin à 100m (la proximité sans le bruit ! ) ligne A (accÚs immédiat CHU, université, centre-ville).- Place de la Fraternité à 100m, tous commerces immédiats.- Proximité immédiate Parc Bocquel et coulée verte. - Résidence parfaitement entretenue aux espaces communs de standing.- Appartement trÚs lumineux avec double exposition, balcon protégé orienté Sud et Ouest.- Place de parking privative couverte et sécurisée avec accÚs ascenseur. 2 / Agencement et équipements : - Espace vie composé d'une entrée avec placard, WC indépendant, donnant sur grande piÚce à vivre trÚs lumineuse avec cuisine neuve aménagée et équipée et coin salon donnant sur un joli balcon aux proportions fonctionnelles permettant largement de s'installer à 4.- Coin nuit avec 2 belles chambres en pignon et une salle d'eau équipée notamment d'une douche moderne avec receveur extra plat et coin buanderie.- Radiateurs muraux alimentés par chauffage collectif Biomasse (réseau de chaleur urbain) donc pas de chaudiÚre d'abonnements et d'entretien, participant à des charges trÚs faibles : 1156€ par an incluant tout sauf l'électricité. - Vidéo surveillance et sécurisation des entrées. - Normes PMR : Personnes à Mobilité Réduite. Vous apprécierez l'emplacement idéal, l'état neuf, et la qualité de cette résidence ! La presente annonce immobiliere vise 2 lots situés dans une copropriété de 121 lots au total et ne faisant l'objet d'aucune procédure en cours citée à l'article L. 721-1 du code de la construction et de l'habitation. Montant moyen mensuel de charges déclaré par le vendeur : 96.33€ par mois (soit 1156 € annuel). Honoraires d'agence à la charge du vendeur. Information d'affichage énergétique sur ce bien : classe ENERGIE B indice 84 et classe CLIMAT B indice 9. Les informations sur les risques auxquels ce bien est exposé, y compris l'obligation légale de débroussaillement, sont disponibles sur le site Géorisques : http://www.georisques.gouv.fr.La présente annonce immobiliÚre a été rédigée sous la responsabilité éditoriale de M Frédéric Lemaire mandataire indépendant en immobilier (sans détention de fonds), agent commercial de la SAS I@D France immatriculé au RSAC de Angers sous le numéro 824726152, titulaire de la carte de démarchage immobilier pour le compte de la société I@D France SAS. (gedeon_6727_32966117)

Partager

* Honoraires à la charge du vendeur

Caractéristiques


Prestations intérieures
  • Pièce(s) : 3
  • Chambre(s) : 2
Prestations extérieures
  • Accès handicapé : Non
  • Ascenseur : Oui
  • Digicode : Non
  • Balcon : 1
  • Surface : m2
Informations sur le lot
  • Localisation : Angers
  • Année de construction : 2023
  • Copropriété : Oui
  • Nombre de lots : 121
  • Montant annuel quote-part budget prévisionnel : 1156€
  • Aucune procédure n'est en cours

Géorisques

Les informations sur les risques auxquels ce bien est exposé sont disponibles sur le site Géorisques. https://www.georisques.gouv.fr

Diagnostic de performance énergétique


  • Diagnostics de performance énergétiques (DPE)
    B
    Consommation (énergie primaire)
    84
    kWh/m².an
    Emissions (énergie primaire)
    9
    kWh/m².an
    A B C D E F G logement extrêmement performant logement extrêmement peu performant
  • Émissions de gaz à effet de serre (GES)
    B
    Émissions GES (gaz à effet de serre)
    9
    kg CO2/m².an
    A B C D E F G logement peu émetteur de CO2 logement très émetteur de CO2
  • Date du DPE : 03/12/2023
    Montant estimé des dépenses annuelles d’énergie pour un usage standard entre 320.00€ et 500.00€ par an. Prix moyens des énergies indexés en 28/03/2026 (abonnement compris)

    Cette annonce immobilière est rédigée sous la responsabilité de l’annonceur.

    Calculez vos mensualités


    calendar Created with Sketch.
    Vos mensualités
    Taux d'assurance non inclus
    ** Cette simulation est donnée à titre indicatif et n’a pas de valeur contractuelle. La mensualité est calculée sans assurance. Elle ne saurait être assimilée à une proposition commerciale. Elle est calculée sur des hypothèses en se basant sur les taux moyens proposés par les partenaires bancaires de CRESERFI
    calendar Created with Sketch.
    Vos mensualités
    Taux d'assurance non inclus
    ** Cette simulation est donnée à titre indicatif et n’a pas de valeur contractuelle. La mensualité est calculée sans assurance. Elle ne saurait être assimilée à une proposition commerciale. Elle est calculée sur des hypothèses en se basant sur les taux moyens proposés par les partenaires bancaires de CRESERFI
    223 000 €
    Appartement 58m2 à Angers
    En vente
    Achetez en toute confiance

    Appartement 58m2Angers

    vente
    223 000 €*
    Publiée le 28/03/2026

    IAD FRANCE
  • Afficher le téléphone
  • ...

    Vous ne trouvez pas votre bonheur ?

    Confiez nous votre recherche
    En poursuivant votre navigation sur ce site, vous acceptez l'utilisation de cookies afin de vous proposer des services adaptés à votre profil. En savoir plus