Retour à la liste
Photos

A propos de

Ref.1923310

Appartement
2 pièce(s)
1 chambre(s)
43m2

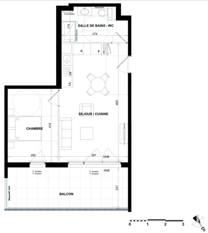
Iad France - Matthieu Chionchini (06 52 78 35 06) vous propose : Spacieux 2 pièces avec grand balcon et parking - Antibes (06600) Dans un quartier calme et recherché d'Antibes, découvrez cet agréable 2 pièces de 43,05 m² environ, situé au 2 ? étage d'une résidence récente et bien entretenue. Idéal pour un investissement locatif ou une résidence principale, ce bien séduit par son exposition sud-ouest et son grand balcon de 15,25 m² environ offrant un bel espace extérieur sans vis-à-vis. L'appartement se compose d'un séjour-cuisine lumineux de 24,85 m² environ, d'une chambre confortable de 11,75 m² environ, et d'une salle d'eau moderne avec WC de 6,45 m² environ. Les volumes sont bien répartis, sans perte d'espace, et la double orientation permet une belle clarté naturelle toute la journée. Une place de parking privative en sous-sol est incluse dans le prix. Le chauffage électrique individuel assure une gestion simple et maîtrisée des charges. ________________________________________ ? Informations financièresoPrix de vente : 299 000 €oFrais de notaire à la charge du vendeuroSurface habitable : 43,05 m² environoSurface extérieure : 15,25 m² environ (balcon)oStationnement : 1 place privative en sous-sol________________________________________ ? Rentabilité locative estiméeAvec un loyer de marché d'environ 785 € par mois, ce bien présente une rentabilité brute avoisinant 3,4 %.Sa localisation stratégique, à proximité de Sophia-Antipolis, des transports et des commerces, en fait un placement patrimonial solide, particulièrement adapté à la location longue durée ou à la location meublée. ________________________________________ ? Les points fortsoExposition sud-ouest offrant une belle luminositéoBalcon généreux de 15 m² environ, parfait pour les repas ou la détenteoSéjour spacieux de près de 25 m² environoParking en sous-sol inclus dans le prixoFrais de notaire à la charge du vendeuroExcellent potentiel locatif dans un secteur prisé d'AntibesHonoraires d'agence à la charge du vendeur. Bien non soumis au DPE. Les informations sur les risques auxquels ce bien est exposé sont disponibles sur le site Géorisques : www.georisques.gouv.fr. La présente annonce immobilière a été rédigée sous la responsabilité éditoriale de M. Matthieu Chionchini EI (ID 85877), mandataire indépendant en immobilier (sans détention de fonds), agent commercial de la SAS I@D France immatriculé au RSAC de Grasse sous le numéro 752939330, titulaire de la carte de démarchage immobilier pour le compte de la société I@D France SAS. Retrouvez tous nos biens sur notre site internet. www.iadfrance.fr. (gedeon_6727_32055427)

Partager

* Honoraires à la charge du vendeur

Caractéristiques


Prestations intérieures
  • Pièce(s) : 2
  • Chambre(s) : 1
Prestations extérieures
  • Accès handicapé : Non
  • Ascenseur : Non
  • Digicode : Non
Informations sur le lot
  • Localisation : Antibes
  • Aucune procédure n'est en cours

Géorisques

Les informations sur les risques auxquels ce bien est exposé sont disponibles sur le site Géorisques. https://www.georisques.gouv.fr

Diagnostic de performance énergétique


  • Non soumis au DPE

  • Information non communiquée par l'annonceur

    Cette annonce immobilière est rédigée sous la responsabilité de l’annonceur.

    Calculez vos mensualités


    calendar Created with Sketch.
    Vos mensualités
    Taux d'assurance non inclus
    ** Cette simulation est donnée à titre indicatif et n’a pas de valeur contractuelle. La mensualité est calculée sans assurance. Elle ne saurait être assimilée à une proposition commerciale. Elle est calculée sur des hypothèses en se basant sur les taux moyens proposés par les partenaires bancaires de CRESERFI
    calendar Created with Sketch.
    Vos mensualités
    Taux d'assurance non inclus
    ** Cette simulation est donnée à titre indicatif et n’a pas de valeur contractuelle. La mensualité est calculée sans assurance. Elle ne saurait être assimilée à une proposition commerciale. Elle est calculée sur des hypothèses en se basant sur les taux moyens proposés par les partenaires bancaires de CRESERFI
    289 000 €
    Appartement 43m2 à Antibes
    En vente
    Achetez en toute confiance

    Appartement 43m2Antibes

    vente
    289 000 €*
    Publiée le 15/03/2026

    IAD FRANCE
  • Afficher le téléphone
  • ...

    Vous ne trouvez pas votre bonheur ?

    Confiez nous votre recherche
    En poursuivant votre navigation sur ce site, vous acceptez l'utilisation de cookies afin de vous proposer des services adaptés à votre profil. En savoir plus