Retour à la liste
Photos

A propos de

Ref.1923322

Appartement
4 pièce(s)
93m2

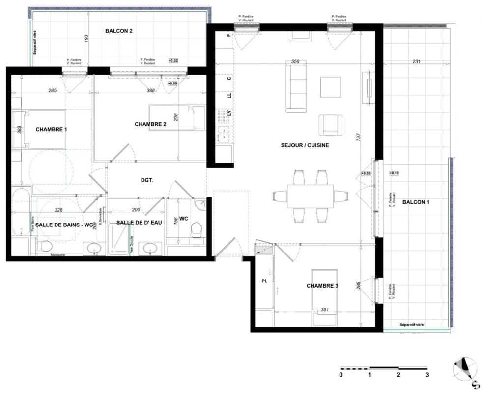
Iad France - Matthieu Chionchini (06 52 78 35 06) vous propose : Superbe 4 piÚces avec double balcon et parking - Antibes (06600) Situé dans un quartier calme et recherché d'Antibes, ce magnifique appartement 4 piÚces au 4 ? étage offre un confort de vie rare grâce à ses volumes généreux, sa luminosité naturelle et ses deux grands balcons totalisant 35,3 m² environ. Ce bien est idéal pour une famille ou un investissement locatif haut de gamme sur un secteur porteur. D'une surface habitable de 92,5 m² environ, il se compose de : oUn séjour-cuisine spacieux de 41,3 m² environ,oTrois chambres confortables de 12,05 m² environ, 11,55 m² environ et 11,15 m² environ,oUne salle de bains avec WC de 6,45 m² environ,oUne salle d'eau supplémentaire de 3,95 m² environ,oUn dégagement pratique de 4,20 m² environ et un WC indépendant de 1,85 m² environ. L'appartement bénéficie d'une exposition sud-est, assurant une belle luminosité toute la journée, et s'ouvre sur deux balcons accessibles depuis le séjour et les chambres. Une place de parking privative en sous-sol complÚte ce bien. Le chauffage électrique individuel permet une gestion simple et maîtrisée des charges. ________________________________________ ? Informations financiÚresoPrix de vente : 719 000 €oFrais de notaire à la charge du vendeuroSurface habitable : 92,5 m² environoSurface extérieure : 35,3 m² environ (2 balcons)oStationnement : 1 place privative en sous-sol________________________________________ ? Rentabilité locative estiméeAvec un loyer de marché estimé autour de 1 480 € par mois, ce bien présente une rentabilité brute d'environ 2,5 %.Son emplacement stratégique à proximité des commerces, des écoles et de Sophia-Antipolis garantit une demande locative solide, ainsi qu'une valorisation patrimoniale à long terme. ________________________________________ ? Les points fortsoSéjour spacieux de plus de 41 m² environoDeux balcons totalisant plus de 35 m² environoTrois chambres confortablesoDeux salles d'eau + WC séparé, un vrai atout pour la vie de familleoParking sécurisé en sous-sol inclusoFrais de notaire à la charge du vendeuroExposition sud-est offrant une belle luminositéoExcellent rapport surface / confort / emplacementHonoraires d'agence à la charge du vendeur. Bien non soumis au DPE. Les informations sur les risques auxquels ce bien est exposé sont disponibles sur le site Géorisques : www.georisques.gouv.fr. La présente annonce immobiliÚre a été rédigée sous la responsabilité éditoriale de M. Matthieu Chionchini EI (ID 85877), mandataire indépendant en immobilier (sans détention de fonds), agent commercial de la SAS I@D France immatriculé au RSAC de Grasse sous le numéro 752939330, titulaire de la carte de démarchage immobilier pour le compte de la société I@D France SAS. Retrouvez tous nos biens sur notre site internet. www.iadfrance.fr. (gedeon_6727_32061967)

Partager

* Honoraires à la charge du vendeur

Caractéristiques


Prestations intérieures
  • Pièce(s) : 4
  • Salle(s) de bain(s) : 1
Prestations extérieures
  • Accès handicapé : Non
  • Ascenseur : Non
  • Digicode : Non
Informations sur le lot
  • Localisation : Antibes
  • Aucune procédure n'est en cours

Géorisques

Les informations sur les risques auxquels ce bien est exposé sont disponibles sur le site Géorisques. https://www.georisques.gouv.fr

Diagnostic de performance énergétique


  • Non soumis au DPE

  • Information non communiquée par l'annonceur

    Cette annonce immobilière est rédigée sous la responsabilité de l’annonceur.

    Calculez vos mensualités


    calendar Created with Sketch.
    Vos mensualités
    Taux d'assurance non inclus
    ** Cette simulation est donnée à titre indicatif et n’a pas de valeur contractuelle. La mensualité est calculée sans assurance. Elle ne saurait être assimilée à une proposition commerciale. Elle est calculée sur des hypothèses en se basant sur les taux moyens proposés par les partenaires bancaires de CRESERFI
    calendar Created with Sketch.
    Vos mensualités
    Taux d'assurance non inclus
    ** Cette simulation est donnée à titre indicatif et n’a pas de valeur contractuelle. La mensualité est calculée sans assurance. Elle ne saurait être assimilée à une proposition commerciale. Elle est calculée sur des hypothèses en se basant sur les taux moyens proposés par les partenaires bancaires de CRESERFI
    719 000 €
    Appartement 93m2 à Antibes
    En vente
    Achetez en toute confiance

    Appartement 93m2Antibes

    vente
    719 000 €*
    Publiée le 15/03/2026

    IAD FRANCE
    ...

    Vous ne trouvez pas votre bonheur ?

    Confiez nous votre recherche
    En poursuivant votre navigation sur ce site, vous acceptez l'utilisation de cookies afin de vous proposer des services adaptés à votre profil. En savoir plus