Retour à la liste
Exclusivité
Photos
Carte

A propos de

Ref.2026356

Appartement
2 pièce(s)
1 chambre(s)
48m2

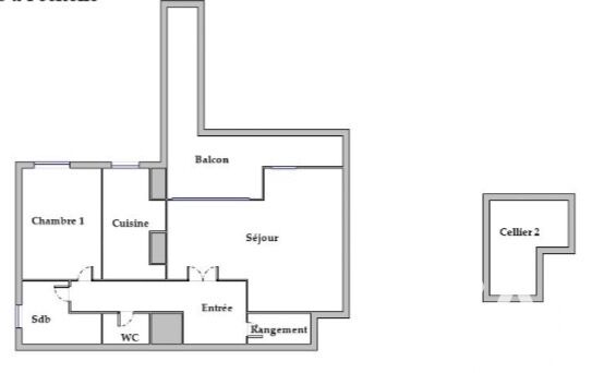
Iad France - Danielle Michel vous propose : Danielle MICHEL iad France vous propose : Cet appartement, au 13Úme étage et situé Résidence du Parc en limite de L'Haÿ-les-Roses et Bourg-La-Reine, est un 2 piÚces de 49 m² à Cachan (94230), un double-box et un cellier. Il est composé d'une entrée, double séjour / salle à manger avec un grand balcon / loggia sans vis-à -vis et avec une vue dégagée, cuisine séparée (possibilité d'ouverture), une chambre, salle de bain, WC et dressing indépendants. Un cellier sur le palier et un double-box viennent compléter ce bien. Les plus plus : Le ravalement et l'isolation de l'immeuble sont récents. TRAVAUX DE REMISE A VOTRE GOUT A PRÉVOIR - Copropriété calme, clÎturée et sécurisée (digicode et interphone) avec ascenseur et gardien, une double box, local à vélos, parc privé. Idéalement situé : Ligne 15 prévue trÚs prochainement, RER B, Bus au pied de l'immeuble (184,187), IUT de Cachan et équipements sportifs, commerces de proximité et écoles à 5min à pied. PS : JE TRAVAILLE AVEC PLAISIR EN PARTAGE AVEC TOUTES LES AGENCES LOCALES & MANDATAIRES. Vous avez des clients ? Appelez-moi ! La presente annonce immobiliere vise 4 lots situés dans une copropriété de 689 lots au total et ne faisant l'objet d'aucune procédure en cours citée à l'article L. 721-1 du code de la construction et de l'habitation. Montant moyen mensuel de charges déclaré par le vendeur : 245.33€ par mois (soit 2944 € annuel). Honoraires d'agence à la charge du vendeur. Information d'affichage énergétique sur ce bien : classe ENERGIE D indice 195 et classe CLIMAT D indice 4242. Les informations sur les risques auxquels ce bien est exposé, y compris l'obligation légale de débroussaillement, sont disponibles sur le site Géorisques : http://www.georisques.gouv.fr.La présente annonce immobiliÚre a été rédigée sous la responsabilité éditoriale de Mme Danielle Michel mandataire indépendant en immobilier (sans détention de fonds), agent commercial de la SAS I@D France immatriculé au RSAC de MEAUX sous le numéro 849236377, titulaire de la carte de démarchage immobilier pour le compte de la société I@D France SAS. (gedeon_6727_32851153)

Partager

* Honoraires à la charge du vendeur

Caractéristiques


Prestations intérieures
  • Pièce(s) : 2
  • Chambre(s) : 1
  • Chauffage : collectif gaz radiateur
Prestations extérieures
  • Accès handicapé : Non
  • Ascenseur : Oui
  • Digicode : Non
Informations sur le lot
  • Localisation : Cachan
  • Année de construction : 1973
  • Copropriété : Oui
  • Nombre de lots : 689
  • Montant annuel quote-part budget prévisionnel : 2944€
  • Aucune procédure n'est en cours

Géorisques

Les informations sur les risques auxquels ce bien est exposé sont disponibles sur le site Géorisques. https://www.georisques.gouv.fr

Diagnostic de performance énergétique


  • Diagnostics de performance énergétiques (DPE)
    D
    Consommation (énergie primaire)
    195
    kWh/m².an
    Emissions (énergie primaire)
    4
    kWh/m².an
    A B C D E F G logement extrêmement performant logement extrêmement peu performant
  • Émissions de gaz à effet de serre (GES)
    D
    Émissions GES (gaz à effet de serre)
    4
    kg CO2/m².an
    A B C D E F G logement peu émetteur de CO2 logement très émetteur de CO2
  • Date du DPE : 06/03/2026
    Montant estimé des dépenses annuelles d’énergie pour un usage standard entre € et € par an. Prix moyens des énergies indexés en 24/03/2026 (abonnement compris)

    Cette annonce immobilière est rédigée sous la responsabilité de l’annonceur.

    Calculez vos mensualités


    calendar Created with Sketch.
    Vos mensualités
    Taux d'assurance non inclus
    ** Cette simulation est donnée à titre indicatif et n’a pas de valeur contractuelle. La mensualité est calculée sans assurance. Elle ne saurait être assimilée à une proposition commerciale. Elle est calculée sur des hypothèses en se basant sur les taux moyens proposés par les partenaires bancaires de CRESERFI
    calendar Created with Sketch.
    Vos mensualités
    Taux d'assurance non inclus
    ** Cette simulation est donnée à titre indicatif et n’a pas de valeur contractuelle. La mensualité est calculée sans assurance. Elle ne saurait être assimilée à une proposition commerciale. Elle est calculée sur des hypothèses en se basant sur les taux moyens proposés par les partenaires bancaires de CRESERFI
    185 000 €
    Appartement 48m2 à Cachan
    En vente
    Achetez en toute confiance

    Appartement 48m2Cachan

    vente
    185 000 €*
    Publiée le 15/03/2026

    IAD FRANCE
  • Afficher le téléphone
  • ...

    Vous ne trouvez pas votre bonheur ?

    Confiez nous votre recherche
    En poursuivant votre navigation sur ce site, vous acceptez l'utilisation de cookies afin de vous proposer des services adaptés à votre profil. En savoir plus