Retour à la liste
Photos
Carte

A propos de

Ref.2002123

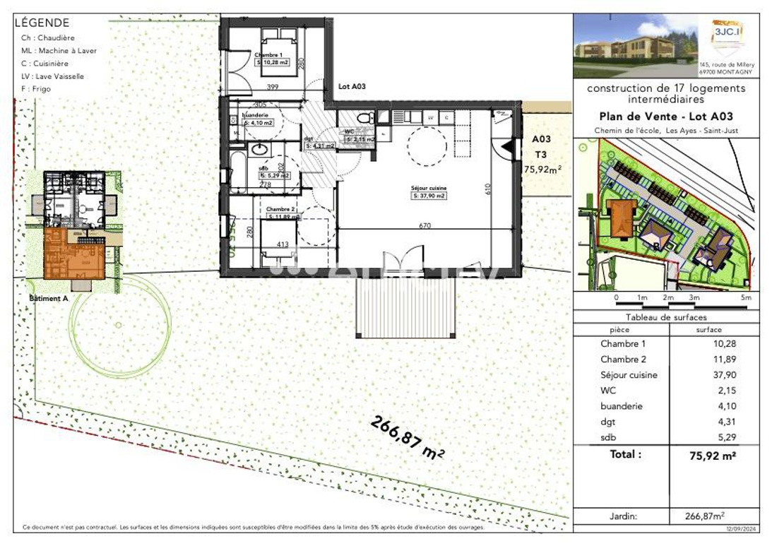
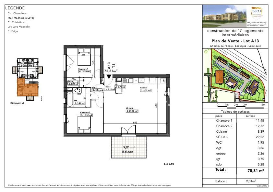
Appartement
3 pièce(s)
2 chambre(s)
65m2

01250 SAINT-JUST - PROGRAMME NEUF – RÉSIDENCE NATUREA - LIVRAISON PRÉVISIONNELLE : 2ᵉ TRIMESTRE 2027 - DERNIÈRES OPPORTUNITÉS !

Efficity, l' agence qui estime votre bien en ligne & Nora El Ghazal, vous proposent : Au cœur d'un environnement résidentiel recherché, à deux pas de l'école et de la crèche, découvrez NATUREA, un programme intimiste de seulement 16 logements, pensé pour une vie confortable, pratique et connectée à la nature.

La résidence bénéficie d'un emplacement stratégique :
Bourg-en-Bresse à 10 minutes
Forêt de Seillon et parc de Bouvent à 5 minutes
Autoroute à 10 minutes / Rocade à 3 minutes
Arrêt bus au pied du programme

Les atouts du neuf :

Frais de notaire réduits
Éligibilité au Prêt à Taux Zéro (selon conditions)
Performance énergétique optimisée (RT 2012)
Factures maîtrisées, confort thermique et isolation renforcée
Garanties constructeur (parfait achèvement, décennale, etc.)

Les logements disponibles : du T2 au T4

Chaque appartement dispose :
• d'une pièce de vie lumineuse avec baies vitrées,
• d'une continuité extérieure : balcon, terrasse ou jardin privatif clos au rez-de-chaussée
• d'un stationnement privatif et garage fermé selon lots

Agencement intelligent, optimisation des volumes, lumière naturelle abondante et vues dégagées sur la végétation environnante.

Prestations techniques et finitions :
• Chauffage individuel au gaz
• Menuiseries PVC double vitrages
• Volets roulants électriques + volets bois selon plans
• Carrelage grand format dans les pièces de vie, parquet dans les chambres
• Salle de bain faïencée, meuble vasque et sèche-serviette
• Local vélos dans chaque bâtiment
• Garages individuels fermés selon lots

Espaces extérieurs paysagés avec essences locales, haies végétales, arbres fruitiers dans chaque jardin privatif et bornes lumineuses d'ambiance

Livraison prévisionnelle : 2ᵉ trimestre 2027

Prix, plans et détails disponibles sur demande.
Possibilité de personnalisation intérieure selon l'avancement de chantier.

Une résidence pensée pour ceux qui veulent :
• le calme sans isolement,
• un habitat performant,
• un investissement sécurisé,
• un cadre de vie verdoyant à proximité immédiate des commodités.

Dernières opportunités — contactez-moi dès aujourd'hui pour échanger sur ce programme : Nora El Ghazal au 07 77 97 29 66 ou par mail : nelghazal@efficity.com pour recevoir les plans, la liste des lots disponibles et organiser une présentation détaillée.
Les informations sur les risques auxquels ce bien est exposé sont disponibles sur le site Georisque : georisques. gouv. fr
Nora El Ghazal - EI - est Agent Commercial mandataire en immobilier, immatriculé au Registre Spécial des Agents Commerciaux du Tribunal de Commerce de Bourg-en-Bresse sous le n°918945940.
Siège social du mandant : effiCity, 48 avenue de Villiers - 75017 PARIS - Société par Actions Simplifiée, société au capital de 132 373,05 euros, immatriculée au RCS Paris 497 617 746 et titulaire de la Carte professionnelle CPI 7501 2015 000 002 025 - CCI Paris IDF - Caisse de Garantie : GALIAN Assurances 89 rue de la Boétie 75008 Paris

Partager

* Honoraires à la charge du vendeur

Caractéristiques


Prestations intérieures
  • Pièce(s) : 3
  • Chambre(s) : 2
  • Salle(s) de bain(s) : 1
  • WC : 1
Prestations extérieures
  • Accès handicapé : 1
  • Ascenseur : Non
  • Digicode : Non
  • Terrasse : Oui
Informations sur le lot
  • Localisation : Saint-Just
  • Année de construction : 2026
  • Copropriété : Oui
  • Nombre de lots : 17
  • Montant annuel quote-part budget prévisionnel : 1€
  • Aucune procédure n'est en cours

Géorisques

Les informations sur les risques auxquels ce bien est exposé sont disponibles sur le site Géorisques. https://www.georisques.gouv.fr

Diagnostic de performance énergétique


  • Diagnostics de performance énergétiques (DPE)
    A
    Consommation (énergie primaire)
    1
    kWh/m².an
    Emissions (énergie primaire)
    1
    kWh/m².an
    A B C D E F G logement extrêmement performant logement extrêmement peu performant
  • Émissions de gaz à effet de serre (GES)
    A
    Émissions GES (gaz à effet de serre)
    1
    kg CO2/m².an
    A B C D E F G logement peu émetteur de CO2 logement très émetteur de CO2
  • Date du DPE : 01/01/2026
    Montant estimé des dépenses annuelles d’énergie pour un usage standard entre 1.00€ et 1.00€ par an. Prix moyens des énergies indexés en 01/01/2023 (abonnement compris)

    Cette annonce immobilière est rédigée sous la responsabilité de l’annonceur.

    Calculez vos mensualités


    calendar Created with Sketch.
    Vos mensualités
    Taux d'assurance non inclus
    ** Cette simulation est donnée à titre indicatif et n’a pas de valeur contractuelle. La mensualité est calculée sans assurance. Elle ne saurait être assimilée à une proposition commerciale. Elle est calculée sur des hypothèses en se basant sur les taux moyens proposés par les partenaires bancaires de CRESERFI
    calendar Created with Sketch.
    Vos mensualités
    Taux d'assurance non inclus
    ** Cette simulation est donnée à titre indicatif et n’a pas de valeur contractuelle. La mensualité est calculée sans assurance. Elle ne saurait être assimilée à une proposition commerciale. Elle est calculée sur des hypothèses en se basant sur les taux moyens proposés par les partenaires bancaires de CRESERFI
    205 000 €
    Appartement 65m2 à Saint-Just
    En vente
    Achetez en toute confiance

    Appartement 65m2Saint-Just

    vente
    205 000 €*
    Publiée le 27/02/2026

    RESEAU EFFICITY
  • Afficher le téléphone
  • ...

    Vous ne trouvez pas votre bonheur ?

    Confiez nous votre recherche
    En poursuivant votre navigation sur ce site, vous acceptez l'utilisation de cookies afin de vous proposer des services adaptés à votre profil. En savoir plus