- 289
A propos de
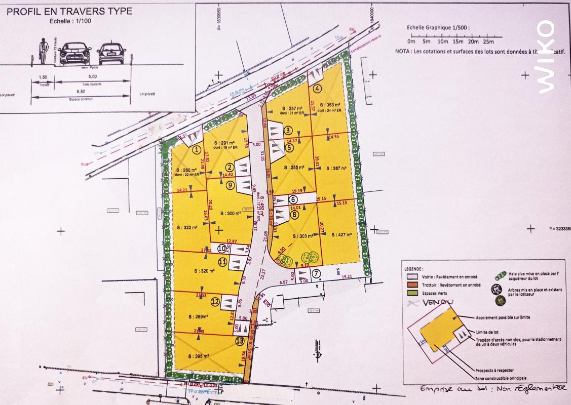
84500 BOLLENE – A DECOUVRIR RAPIDEMENT EN EXCLUSIVITE – TERRAIN PLAT & VIABILISE DE 367M² – LOT 6 – PISCINABLE – LIBRE CONSTRUCTEUR – DANS CHARMANT PETIT LOTISSEMENT AGREABLE, CALME & TRES BIEN DESSERVI – POSSIBILITE DE MIXER HABITATION & PROFESSION LIBERALE – ETUDE DE SOL REALISEE
efficity, l'agence qui estime votre bien en ligne, vous propose de découvrir en EXCLUSIVITE avec Raphaël Deloche, ce terrain constructible idéalement situé rue Jules Verne, dans un environnement calme et verdoyant, à proximité immédiate des commodités : écoles, commerces, transports et accès autoroute. Vous pourrez ici construire la maison idéale, de PLEIN PIED OU ETAGE, avec terrasse, piscine et garage tout en conservant un bout de jardin.
Constructions destinées à l'implantation de profession libérales, médicales ou apparentées autorisées.
Emprise au sol non règlementée – Superficie plancher 200m²
Etude de sols G1 réalisées –
DEPECHEZ-VOUS : 7 terrains disponibles sur 13.
Les atouts du terrain :
Libre constructeur
Terrain plat et paisible
Viabilisé, prêt à bâtir
Piscinable
Surface plancher jusqu'à 200 m² possible
Emprise au sol : non règlementée
Construction en limite de parcelle ou distance de 3m
Secteur recherché et agréable à vivre
Informations complémentaires :
15 % de la parcelle à conserver en espace vert
Accompagnement constructeur possible
Plusieurs parcelles disponibles de différentes tailles sur le lotissement
Cette parcelle n'attend plus que vous et votre petit cocoon...Une belle opportunité pour concrétiser votre projet de maison dans un cadre serein et pratique !
Renseignements & visites avec Raphaël Deloche par téléphone ou par mail
Les informations sur les risques auxquels ce bien est exposé sont disponibles sur le site Georisque : georisques. gouv. fr
Raphaël Deloche - EI - est Agent Commercial mandataire en immobilier, immatriculé au Registre Spécial des Agents Commerciaux du Tribunal de Commerce de Avignon sous le n°850822784.
Siège social du mandant : effiCity, 48 avenue de Villiers - 75017 PARIS - Société par Actions Simplifiée, société au capital de 132 373,05 euros, immatriculée au RCS Paris 497 617 746 et titulaire de la Carte professionnelle CPI 7501 2015 000 002 025 - CCI Paris IDF - Caisse de Garantie : GALIAN Assurances 89 rue de la Boétie 75008 Paris
* 66 400 € honoraires exclus - Honoraires maximums de 9.94 % TTC à la charge de l'acquéreur
Diagnostic de performance énergétique
Non soumis au DPE
Information non communiquée par l'annonceur
Cette annonce immobilière est rédigée sous la responsabilité de l’annonceur.
Biens immobiliers similaires
Calculez vos mensualités
Vos mensualités
Terrain 367m2Bollène
RESEAU EFFICITY