- 6
- 251
A propos de
Iad France - Nathalie Large Odier vous propose : SOUS OFFRE- Une rareté sur le marché : dans le triangle d'or de Chatou se dévoile une demeure d'exception, une authentique maison Mansart, signature architecturale intemporelle et symbole du raffinement à la française. Ces demeures, conçues dans l'esprit de Jules Hardouin-Mansart, architecte de Louis XIV, incarnent l'équilibre parfait entre élégance classique et volumes généreux. Devenues rarissimes, elles traversent les siÚcles sans perdre leur majesté et offrent aujourd'hui une toile idéale pour écrire une nouvelle histoire. À restaurer intégralement, cette maison offre aux passionnés l'occasion unique de la façonner selon leurs envies, entre respect du patrimoine et intégration des codes contemporains : lumiÚre, confort, modernité. C'est une page blanche précieuse, où chaque détail pourra être pensé dans l'esprit de l'art de vivre d'hier et d'aujourd'hui. Le terrain, intime et facile d'entretien, invite à concevoir une maison de famille chaleureuse ou une élégante résidence secondaire, à quelques encablures seulement de Paris. Comme à la Belle Époque, on vient ici se ressourcer au calme, dans l'atmosphÚre raffinée de Chatou - ses bords de Seine, ses demeures historiques, son charme résidentiel si recherché. Cerise sur le gâteau : un studio avec une totale indépendance d'accÚs complÚte la propriété. Idéale pour accueillir un étudiant, un espace professionnel (professions libérales, cabinet privé) ou loger un invité de longue durée, il ouvre de multiples perspectives d'usage, toutes précieuses dans un tel cadre. Un bien pour esthÚtes et connaisseurs, à la recherche d'un projet unique et chargé d'histoire. Honoraires d'agence à la charge du vendeur. Information d'affichage énergétique sur ce bien : classe ENERGIE F indice 418 et classe CLIMAT F indice 92. Les informations sur les risques auxquels ce bien est exposé, y compris l'obligation légale de débroussaillement, sont disponibles sur le site Géorisques : http://www.georisques.gouv.fr.La présente annonce immobiliÚre a été rédigée sous la responsabilité éditoriale de Mme Nathalie Large Odier mandataire indépendant en immobilier (sans détention de fonds), agent commercial de la SAS I@D France immatriculé au RSAC de Paris sous le numéro 981596406, titulaire de la carte de démarchage immobilier pour le compte de la société I@D France SAS. (gedeon_6727_32000312)
* Honoraires à la charge du vendeur
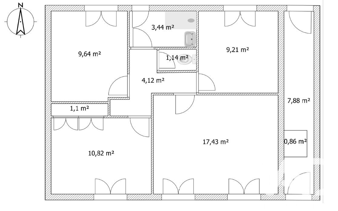
Caractéristiques
Prestations intérieures
- Pièce(s) : 8
- Chambre(s) : 6
- Chauffage : gaz radiateur
Prestations extérieures
- Accès handicapé : Non
- Ascenseur : Non
- Digicode : Non
Informations sur le lot
- Localisation : Chatou
- Année de construction : 1882
- Aucune procédure n'est en cours
Géorisques
Les informations sur les risques auxquels ce bien est exposé sont disponibles sur le site Géorisques. https://www.georisques.gouv.frDiagnostic de performance énergétique
Diagnostics de performance énergétiques (DPE)
kWh/m².an
kWh/m².an
Émissions de gaz à effet de serre (GES)
kg CO2/m².an
Cette annonce immobilière est rédigée sous la responsabilité de l’annonceur.
Biens immobiliers similaires
Calculez vos mensualités
Vos mensualités
Maison 243m2Chatou
IAD FRANCE