Retour à la liste
Photos
Carte

A propos de

Ref.1509633

Maison
5 pièce(s)
4 chambre(s)
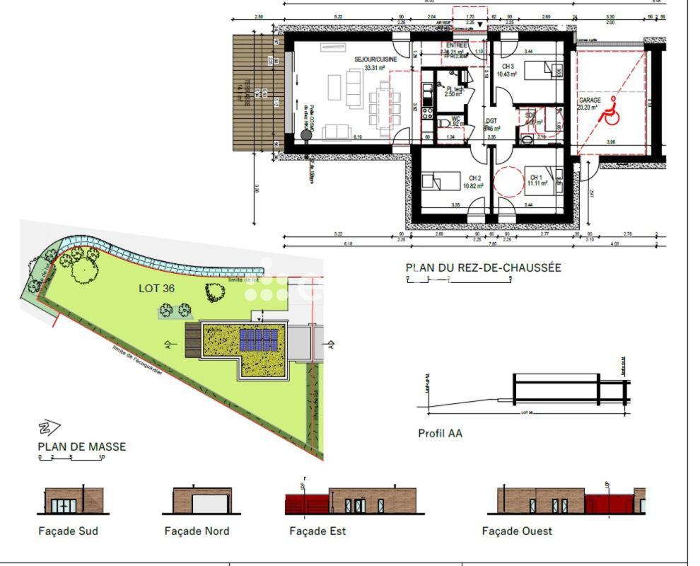
108m2

Philippe Gatier Efficity, l'agence qui estime votre bien en ligne vous propose cette maison contemporaine de 108m2 aux prestations haut de gamme, pour un confort absolu au quotidien.

Elle comprend au rez-de-chaussée une entrée, une cuisine ouverte sur salon-séjour avec un accès à terrasse et une partie nuit avec une chambre, salle d'eau et wc.
A l'étage, vous retrouverez un palier distribuant 3 chambres avec une salle de bains avec wc.

Cette maison est érigée sur un terrain semi-clos et arboré de 538m2.
Un garage de 20m2 carrelé et une place de stationnement viennent compléter ce bien.

Au sein d'un cadre de vie exceptionnel au milieu de la nature, cette maison offre le mariage parfait entre modernité, confort et respect de l'environnement.
Enfin, sa conception à énergie passive vous assurera une efficacité énergétique optimale et des économies significatives sur les coûts de chauffage.

Intérieurs :
* Parquet massif
* Carrelage 60*60 ou 80*80
* Poêle RIKA (norme passive House)
* Salle de bains PORCELANOSA
* Triple vitrage + volets roulants électriques
* Fenêtres oscillo battantes

Extérieurs :
* Haies bocagères de 1.20m à 1.50m de hauteur
* Panneaux solaires sur le toit avec batterie permettant de restituer l'énergie en fin de journée ou pour la charge d'une voiture électrique
* Récupérateur d'eau de pluie

Détails techniques :
* Domotique : chauffe eau thermodynamique, brise soleil orientables électriques connectés, système alarme santé
* VMC double flux
Personnalisation de votre Maison :
* Choix des matériaux de finition, des revêtements de sol et des coloris pour créer un intérieur à votre image
* Possibilité d'adapter l'agencement intérieur selon vos besoins et vos préférences
* Options de personnalisation pour les équipements et les aménagements extérieurs, tels que les terrasses, les jardins et les abords de la maison
Équipements communs :
* Espace partagé de 285m2 comprenant :
- salle de sport en libre accès - espace bureau cowerking (à réserver via une application)
- salle commune avec cuisine (à réserver via une application)
* Verger partagé
* Aires de jeux et de repos
* Mise à disposition de 20 vélos électriques et 2 voitures électriques.

N'hésitez pas à me contacter pour d'autres modèles disponibles au 07 87 934 476.
Les informations sur les risques auxquels ce bien est exposé sont disponibles sur le site Georisque : georisques. gouv. fr
Rose Benchabbi - EI - est Agent Commercial mandataire en immobilier, immatriculé au Registre Spécial des Agents Commerciaux du Tribunal de Commerce de Dijon sous le n°922161823.
Siège social du mandant : effiCity, 48 avenue de Villiers - 75017 PARIS - Société par Actions Simplifiée, société au capital de 132 373,05 euros, immatriculée au RCS Paris 497 617 746 et titulaire de la Carte professionnelle CPI 7501 2015 000 002 025 - CCI Paris IDF - Caisse de Garantie : GALIAN Assurances 89 rue de la Boétie 75008 Paris

Partager

* Honoraires à la charge du vendeur

Caractéristiques


Prestations intérieures
  • Pièce(s) : 5
  • Chambre(s) : 4
  • Chauffage : individuel
  • WC : 2
Prestations extérieures
  • Accès handicapé : 1
  • Ascenseur : Non
  • Jardin : 539 m2
  • Digicode : Non
  • Parking : 1
  • Terrasse : Oui
Informations sur le lot
  • Localisation : Messigny-et-Vantoux
  • Copropriété : Oui
  • Nombre de lots : 43
  • Montant annuel quote-part budget prévisionnel : 720€
  • Aucune procédure n'est en cours

Géorisques

Les informations sur les risques auxquels ce bien est exposé sont disponibles sur le site Géorisques. https://www.georisques.gouv.fr

Diagnostic de performance énergétique


  • Non soumis au DPE

  • Information non communiquée par l'annonceur

    Cette annonce immobilière est rédigée sous la responsabilité de l’annonceur.

    Calculez vos mensualités


    calendar Created with Sketch.
    Vos mensualités
    Taux d'assurance non inclus
    ** Cette simulation est donnée à titre indicatif et n’a pas de valeur contractuelle. La mensualité est calculée sans assurance. Elle ne saurait être assimilée à une proposition commerciale. Elle est calculée sur des hypothèses en se basant sur les taux moyens proposés par les partenaires bancaires de CRESERFI
    calendar Created with Sketch.
    Vos mensualités
    Taux d'assurance non inclus
    ** Cette simulation est donnée à titre indicatif et n’a pas de valeur contractuelle. La mensualité est calculée sans assurance. Elle ne saurait être assimilée à une proposition commerciale. Elle est calculée sur des hypothèses en se basant sur les taux moyens proposés par les partenaires bancaires de CRESERFI
    475 000 €
    Maison 108m2 à Messigny-et-Vantoux
    En vente
    Achetez en toute confiance

    Maison 108m2Messigny-et-Vantoux

    vente
    475 000 €*
    Publiée le 22/12/2025

    RESEAU EFFICITY
  • Afficher le téléphone
  • ...

    Vous ne trouvez pas votre bonheur ?

    Confiez nous votre recherche
    En poursuivant votre navigation sur ce site, vous acceptez l'utilisation de cookies afin de vous proposer des services adaptés à votre profil. En savoir plus