- 1
- 32
A propos de
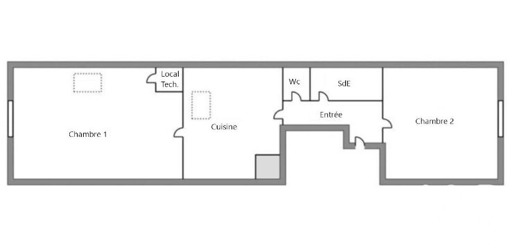
Iad France - Frédéric Lemaire vous propose : Appartement T3 comme neuf de 63 m² au 1er étage, 2 chambres, avec balcon, garage privatif en sous-sol, trÚs au calme et idéalement situé dans les hauts de St- Aubin, au sein d'une résidence de 2024 et présentant de vrais atouts évidents : 1/ Environnement et extérieurs : - Plateau des Capucins des Hauts de Saint-Aubin.- Tramway à 100m (la proximité sans le bruit ! ) ligne A (accÚs immédiat CHU, université, centre-ville).- Place de la Fraternité à 50m, tous commerces immédiats.- AccÚs direct Parc Bocquel et coulée verte. - Résidence Iconik, seulement 49 logements répartis sur 2 bâtiments et 5 niveaux, architecture aérée et élégante, mélange de bois et de blanc.- Appartement trÚs lumineux avec double exposition, balcon protégé orienté Est / Sud-Est cÎté jardin.- Garage privatif en sous-sol avec accÚs ascenseur norme PMR. 2 / Agencement et équipements : - Espace vie composé d'une entrée avec placard donnant sur grande piÚce à vivre trÚs lumineuse avec cuisine équipée (Four, plaque de cuisson et hotte, réfrigérateur / congélateur) et aménagée.- 2 chambres dont l'une avec un accÚs direct balcon et l'autre avec une fenêtre en pignon et un placard aménagé.- Une salle d'eau assez grande avec une douche moderne avec receveur plat, un coin buanderie et WC.- Radiateurs muraux alimentés par chaudiÚre individuelle au gaz. Vous apprécierez l'emplacement idéal, l'état neuf, et la qualité de cette résidence ! La presente annonce immobiliere vise 2 lots situés dans une copropriété de 97 lots au total et ne faisant l'objet d'aucune procédure en cours citée à l'article L. 721-1 du code de la construction et de l'habitation. Montant moyen mensuel de charges déclaré par le vendeur : 87€ par mois (soit 1044 € annuel). Honoraires d'agence à la charge du vendeur. Information d'affichage énergétique sur ce bien : classe ENERGIE C indice 56 et classe CLIMAT C indice 11. Les informations sur les risques auxquels ce bien est exposé, y compris l'obligation légale de débroussaillement, sont disponibles sur le site Géorisques : http://www.georisques.gouv.fr.La présente annonce immobiliÚre a été rédigée sous la responsabilité éditoriale de M Frédéric Lemaire mandataire indépendant en immobilier (sans détention de fonds), agent commercial de la SAS I@D France immatriculé au RSAC de Angers sous le numéro 824726152, titulaire de la carte de démarchage immobilier pour le compte de la société I@D France SAS. (gedeon_6727_32349160)
* Honoraires à la charge du vendeur
Caractéristiques
Prestations intérieures
- Pièce(s) : 3
- Chambre(s) : 2
- Chauffage : individuel gaz radiateur
Prestations extérieures
- Accès handicapé : Non
- Ascenseur : Oui
- Digicode : Non
- Terrasse : Oui
Informations sur le lot
- Localisation : Angers
- Année de construction : 2024
- Copropriété : Oui
- Nombre de lots : 97
- Montant annuel quote-part budget prévisionnel : 1044€
- Aucune procédure n'est en cours
Géorisques
Les informations sur les risques auxquels ce bien est exposé sont disponibles sur le site Géorisques. https://www.georisques.gouv.frDiagnostic de performance énergétique
Diagnostics de performance énergétiques (DPE)
kWh/m².an
kWh/m².an
Émissions de gaz à effet de serre (GES)
kg CO2/m².an
Cette annonce immobilière est rédigée sous la responsabilité de l’annonceur.
Biens immobiliers similaires
Calculez vos mensualités
Vos mensualités
Appartement 63m2Angers
IAD FRANCE