Retour à la liste
Photos

A propos de

Ref.1951746

Appartement
4 pièce(s)
3 chambre(s)
103m2

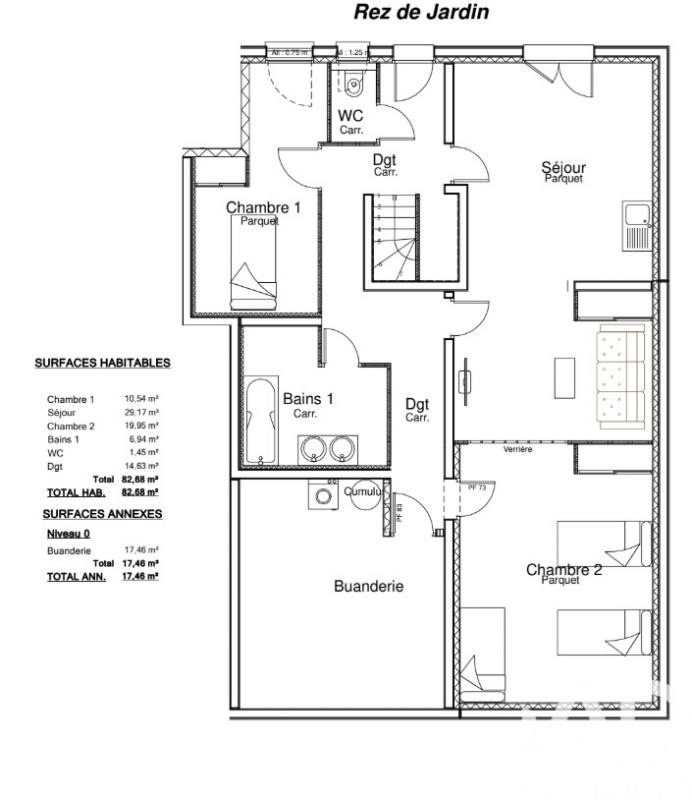
Iad France - Alexandre MERCERON vous propose : À 400 METRES DE LA PLAGE DES DUNESAppartement Moderne de 4 piÚces Avec Terrasse - Bretignolles-sur-MerBienvenue dans ce superbe appartement récemment rénové, situé au cOEur du quartier des Dunes à Bretignolles-sur-Mer. Ce trésor immobilier de 102 m² offre des espaces de vie lumineux et contemporains, idéaux pour un mode de vie confortable et moderne. DÚs l'entrée, vous serez séduit par le design soigné et l'attention portée aux détails. Le salon, la salle à manger et la cuisine s'entremêlent harmonieusement pour créer une atmosphÚre conviviale et chaleureuse. Les trois chambres offrent un espace de repos paisible, tandis que la salle d'eau et les toilettes séparées ajoutent une touche de confort supplémentaire. L'atout majeur de cet appartement est sa belle terrasse couverte, idéale pour profiter des douces soirées d'été ou pour organiser des repas en plein air avec vos proches. Imaginez-vous savourer un café le matin tout en profitant du calme en plein air. Doté d'un parking privé pour deux véhicules, vous bénéficierez d'une tranquillité d'esprit absolue en matiÚre de stationnement. De plus, sa proximité avec la plage (à seulement 400m) vous offrira la chance de profiter du littoral à tout moment. Cet appartement ravira les amateurs de confort moderne, de tranquillité et de proximité avec les commodités essentielles. Les restaurants à 300m et les commerces à 5 minutes à pied vous offriront un quotidien des plus pratiques. Ne manquez pas cette opportunité de vivre dans un environnement serein, à deux pas de la mer. Contactez-nous dÚs maintenant pour organiser une visite et laissez-vous charmer par ce bien d'exception à Bretignolles-sur-Mer. La presente annonce immobiliere vise 1 lot situé dans une copropriété de 2 lots au total et ne faisant l'objet d'aucune procédure en cours citée à l'article L. 721-1 du code de la construction et de l'habitation. Montant moyen mensuel de charges déclaré par le vendeur : 8.33€ par mois (soit 100 € annuel). Honoraires d'agence à la charge du vendeur. Information d'affichage énergétique sur ce bien : classe ENERGIE D indice 191 et classe CLIMAT B indice 6. Les informations sur les risques auxquels ce bien est exposé, y compris l'obligation légale de débroussaillement, sont disponibles sur le site Géorisques : http://www.georisques.gouv.fr.La présente annonce immobiliÚre a été rédigée sous la responsabilité éditoriale de M Alexandre MERCERON mandataire indépendant en immobilier (sans détention de fonds), agent commercial de la SAS I@D France immatriculé au RSAC de roche sur yon sous le numéro 408083459, titulaire de la carte de démarchage immobilier pour le compte de la société I@D France SAS. (gedeon_6727_32196375)

Partager

* Honoraires à la charge du vendeur

Caractéristiques


Prestations intérieures
  • Pièce(s) : 4
  • Chambre(s) : 3
  • Chauffage : individuel électrique radiateur
Prestations extérieures
  • Accès handicapé : Non
  • Ascenseur : Non
  • Digicode : Non
  • Terrasse : Oui
Informations sur le lot
  • Localisation : Bretignolles-sur-Mer
  • Année de construction : 2023
  • Copropriété : Oui
  • Nombre de lots : 2
  • Montant annuel quote-part budget prévisionnel : 100€
  • Aucune procédure n'est en cours

Géorisques

Les informations sur les risques auxquels ce bien est exposé sont disponibles sur le site Géorisques. https://www.georisques.gouv.fr

Diagnostic de performance énergétique


  • Diagnostics de performance énergétiques (DPE)
    D
    Consommation (énergie primaire)
    191
    kWh/m².an
    Emissions (énergie primaire)
    6
    kWh/m².an
    A B C D E F G logement extrêmement performant logement extrêmement peu performant
  • Émissions de gaz à effet de serre (GES)
    B
    Émissions GES (gaz à effet de serre)
    6
    kg CO2/m².an
    A B C D E F G logement peu émetteur de CO2 logement très émetteur de CO2
  • Date du DPE : 02/05/2023
    Montant estimé des dépenses annuelles d’énergie pour un usage standard entre 2110.00€ et 2910.00€ par an. Prix moyens des énergies indexés en 23/03/2026 (abonnement compris)

    Cette annonce immobilière est rédigée sous la responsabilité de l’annonceur.

    Calculez vos mensualités


    calendar Created with Sketch.
    Vos mensualités
    Taux d'assurance non inclus
    ** Cette simulation est donnée à titre indicatif et n’a pas de valeur contractuelle. La mensualité est calculée sans assurance. Elle ne saurait être assimilée à une proposition commerciale. Elle est calculée sur des hypothèses en se basant sur les taux moyens proposés par les partenaires bancaires de CRESERFI
    calendar Created with Sketch.
    Vos mensualités
    Taux d'assurance non inclus
    ** Cette simulation est donnée à titre indicatif et n’a pas de valeur contractuelle. La mensualité est calculée sans assurance. Elle ne saurait être assimilée à une proposition commerciale. Elle est calculée sur des hypothèses en se basant sur les taux moyens proposés par les partenaires bancaires de CRESERFI
    299 000 €
    Appartement 103m2 à Bretignolles-sur-Mer
    En vente
    Achetez en toute confiance

    Appartement 103m2Bretignolles-sur-Mer

    vente
    299 000 €*
    Publiée le 23/11/2025

    IAD FRANCE
    ...

    Vous ne trouvez pas votre bonheur ?

    Confiez nous votre recherche
    En poursuivant votre navigation sur ce site, vous acceptez l'utilisation de cookies afin de vous proposer des services adaptés à votre profil. En savoir plus