Retour à la liste
Nouveau depuis 3 heures
Photos
Carte

A propos de

Ref.SNI_0000_387203

Appartement
2 pièce(s)
1 chambre(s)
46m2

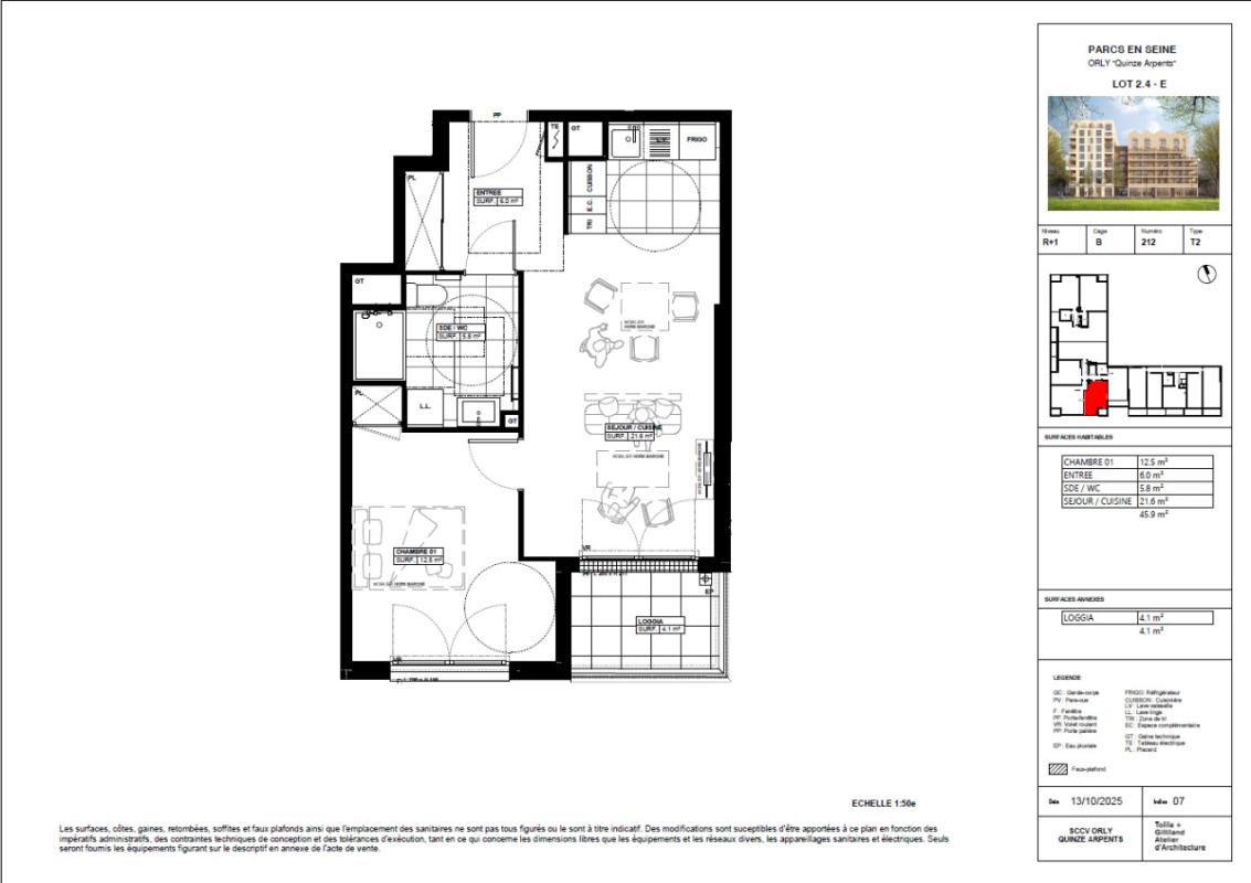
SANS HONORAIRES. RESIDENCE PARC EN SCENE - LIVRAISON FIN AVRIL 2026 Nous avons le plaisir de vous proposer ce T2 de 46 m2 situé dans notre belle résidence 'parc en scène', comprenant : Une entrée avec placard, une salle d'eau avec un WC, un séjour avec cuisine ouverte de 21 m2, une chambre de 12 m2 et une loggia de 4,3 m2. La résidence respectera les nouvelles normes environnementales grâce à l'utilisation de techniques de construction bas carbone et biosourcées et les logements seront raccordés au réseau de chaleur urbain permettant d'atteindre 98% d'énergie renouvelable. La nature sera présente sur les toits avec des toitures végétalisées et des plantations sous serres qui seront accessibles aux résidents. Des commerces ainsi qu'un centre médical, une crèche et une groupe scolaire de 16 classes prendront place dans le quartier. VISITE SUR PLANS DANS UN LOGEMENT TEMOIN SANS HONORAIRE. Réf : 387203 Référence à rappeler lors de nos échanges : A984 - 387203 Les informations sur les risques auxquels ce bien est exposé sont disponibles sur le site Géorisques : www.georisques.gouv.fr Logement Locatif Interm.

Partager

*Détail des honoraires selon la loi ALUR
Les honoraires agences peuvent prendre en compte les frais de visite, de constitution du dossier, de rédaction du bail et d'établissement de l'état des lieux.

Caractéristiques


Prestations intérieures
  • Pièce(s) : 2
  • Chambre(s) : 1
  • Chauffage : collectif gaz
Prestations extérieures
  • Accès handicapé : Non
  • Ascenseur : Non
  • Digicode : Non
Informations financières
  • Dépôt de garantie : 761 €
  • Charges locatives : 140 €


  • **CC : Charges comprises
Informations sur le lot
  • Localisation : Orly
  • Année de construction : 2026
  • Aucune procédure n'est en cours

Géorisques

Les informations sur les risques auxquels ce bien est exposé sont disponibles sur le site Géorisques. https://www.georisques.gouv.fr

Diagnostic de performance énergétique


  • Non soumis au DPE

  • Information non communiquée par l'annonceur

    901 €
    Appartement 46m2 à Orly
    En vente
    Achetez en toute confiance

    Appartement 46m2Orly

    location
    901 € CC**
    Publiée le 10/04/2026

    CDC HABITAT
  • Afficher le téléphone
  • ...

    Vous ne trouvez pas votre bonheur ?

    Confiez nous votre recherche
    En poursuivant votre navigation sur ce site, vous acceptez l'utilisation de cookies afin de vous proposer des services adaptés à votre profil. En savoir plus