Retour à la liste
Photos
Carte

A propos de

Ref.SNI_0000_380275

Appartement
4 pièce(s)
3 chambre(s)
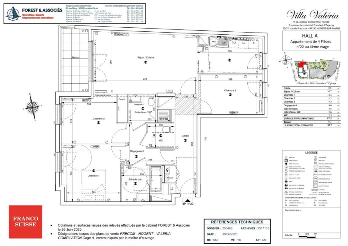
88m2

SANS HONORAIRES. Devenez les premiers locataires d'un appartement T4 lumineux dans une résidence neuve, livrée fin NOVEMBRE 2025 à Nogent-sur-Marne. L'appartement se compose d'une entrée, d'un séjour spacieux avec cuisine ouverte, de trois chambres confortables, ainsi que d'une salle d'eau et de bain ainsi qu'un WC indépendant. De nombreux rangements intégrés complètent ce logement, équipé d'un chauffage individuel pour un confort optimal. La plupart des appartements bénéficient d'un balcon ou d'une loggia, offrant un espace extérieur agréable et paisible. La résidence propose des prestations de qualité avec parking, ascenseur, digicode, interphone, locaux vélos et espaces partagés, dans un cadre sécurisé et convivial. Située dans un quartier résidentiel recherché de Nogent-sur-Marne, la résidence est proche des commerces, des écoles et des services. Les bords de Marne et le bois de Vincennes sont accessibles à pied, offrant un cadre naturel et apaisant. Les transports en commun sont facilement accessibles avec le RER A, plusieurs lignes de bus, ainsi qu'un accès rapide à l'A86. Paris est à seulement quelques minutes. Un logement moderne, spacieux et fonctionnel, idéal pour une famille à la recherche de confort et de qualité de vie en proche banlieue. Référence à rappeler lors de nos échanges : B189 - 380275 Les informations sur les risques auxquels ce bien est exposé sont disponibles sur le site Géorisques : www.georisques.gouv.fr Logement Locatif Interm.

Partager

*Détail des honoraires selon la loi ALUR
Les honoraires agences peuvent prendre en compte les frais de visite, de constitution du dossier, de rédaction du bail et d'établissement de l'état des lieux.

Caractéristiques


Prestations intérieures
  • Pièce(s) : 4
  • Chambre(s) : 3
  • Chauffage : individuel gaz
Prestations extérieures
  • Accès handicapé : Non
  • Ascenseur : Oui
  • Digicode : Non
  • Parking : 1
Informations financières
  • Dépôt de garantie : 1564 €
  • Charges locatives : 190 €


  • **CC : Charges comprises
Informations sur le lot
  • Localisation : Nogent-sur-Marne
  • Année de construction : 2025
  • Aucune procédure n'est en cours

Géorisques

Les informations sur les risques auxquels ce bien est exposé sont disponibles sur le site Géorisques. https://www.georisques.gouv.fr

Diagnostic de performance énergétique


  • Non soumis au DPE

  • Information non communiquée par l'annonceur

    1 842 €
    Appartement 88m2 à Nogent-sur-Marne
    En vente
    Achetez en toute confiance

    Appartement 88m2Nogent-sur-Marne

    location
    1 842 € CC**
    Publiée le 17/03/2026

    CDC HABITAT
  • Afficher le téléphone
  • ...

    Vous ne trouvez pas votre bonheur ?

    Confiez nous votre recherche
    En poursuivant votre navigation sur ce site, vous acceptez l'utilisation de cookies afin de vous proposer des services adaptés à votre profil. En savoir plus