A propos de
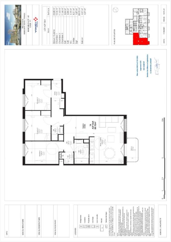
SANS HONORAIRES. Résidence ayant accueilli les athlètes des Jeux Olympiques de Paris 2024. Devenez locataire de cet appartement de type T4 situé en étage, comprenant une entrée, un séjour avec cuisine ouverte aménagée, trois chambres, un balcon, une salle de douche, un WC séparé. Le bien est équipé d'un chauffage au sol collectif. Les logements sont lumineux et bien agencés, avec de nombreux rangements, et pour la plupart un balcon, une terrasse ou une loggia, ainsi qu'un parking. La résidence est calme et sécurisée, avec ascenseur, digicode, interphone, locaux vélos et espaces partagés. Le Stade de France est à 10 minutes à pied, la station de métro Carrefour Pleyel (ligne 13) à 7 minutes, les gares RER B et D (Stade de France) à 10 minutes, et le tram T1 à 5 minutes. Accès rapide au périphérique, à l'A1 et à la N1. De nombreux commerces vont s'implanter dans ce quartier en devenir, un établissement scolaire est également disponible à proximité. Référence à rappeler lors de nos échanges : B221 - 361069 Les informations sur les risques auxquels ce bien est exposé sont disponibles sur le site Géorisques : www.georisques.gouv.fr Logement Locatif Interm.
*Détail des honoraires selon la loi ALUR
Les honoraires agences peuvent prendre en compte les frais de visite, de constitution du dossier, de rédaction du bail et d'établissement de l'état des lieux.
Caractéristiques
Prestations intérieures
- Pièce(s) : 4
- Chambre(s) : 3
- Chauffage : collectif gaz
Prestations extérieures
- Accès handicapé : Non
- Ascenseur : Non
- Digicode : Non
- Parking : 1
Informations financières
- Dépôt de garantie : 1372 €
- Charges locatives : 246 €
- **CC : Charges comprises
Informations sur le lot
- Localisation : Saint-Denis
- Année de construction : 2025
- Aucune procédure n'est en cours
Géorisques
Les informations sur les risques auxquels ce bien est exposé sont disponibles sur le site Géorisques. https://www.georisques.gouv.frDiagnostic de performance énergétique
Non soumis au DPE
Information non communiquée par l'annonceur
Appartement 89m2Saint-Denis
CDC HABITAT