Retour à la liste
Exclusivité
Photos
Carte

A propos de

Ref.SNI_0642_361127

Appartement
5 pièce(s)
4 chambre(s)
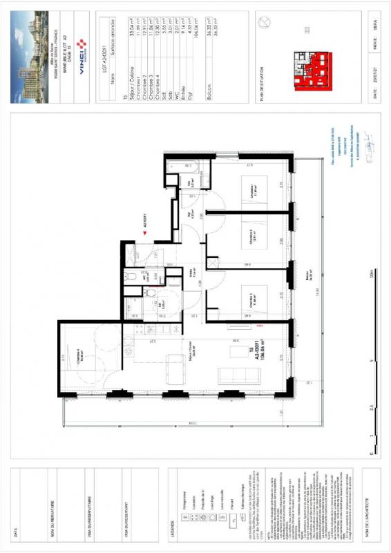
106m2

SANS HONORAIRES. Résidence ayant accueilli les athlètes des Jeux Olympiques de Paris 2024. Devenez locataire de cet appartement de type T5 situé en étage, comprenant une entrée, un séjour avec cuisine ouverte aménagée, 4 chambres, un balcon, une salle de bains , un WC séparé. Le bien est équipé d'un chauffage au sol collectif. Les logements sont lumineux et bien agencés, avec de nombreux rangements, et pour la plupart un balcon, une terrasse ou une loggia, ainsi qu'un parking. La résidence est calme et sécurisée, avec ascenseur, digicode, interphone, locaux vélos et espaces partagés. Le Stade de France est à 10 minutes à pied, la station de métro Carrefour Pleyel (ligne 13) à 7 minutes, les gares RER B et D (Stade de France) à 10 minutes, et le tram T1 à 5 minutes. Accès rapide au périphérique, à l'A1 et à la N1. De nombreux commerces vont s'implanter dans ce quartier en devenir, un établissement scolaire est également disponible à proximité. Référence à rappeler lors de nos échanges : B221 - 361127 Les informations sur les risques auxquels ce bien est exposé sont disponibles sur le site Géorisques : www.georisques.gouv.fr Logement Locatif Interm.

Partager

*Détail des honoraires selon la loi ALUR
Les honoraires agences peuvent prendre en compte les frais de visite, de constitution du dossier, de rédaction du bail et d'établissement de l'état des lieux.

Caractéristiques


Prestations intérieures
  • Pièce(s) : 5
  • Chambre(s) : 4
  • Salle(s) de bain(s) : 1
  • Chauffage : collectif gaz
Prestations extérieures
  • Accès handicapé : Non
  • Ascenseur : Non
  • Digicode : Non
  • Parking : 1
Informations financières
  • Dépôt de garantie : 1645 €
  • Charges locatives : 298 €


  • **CC : Charges comprises
Informations sur le lot
  • Localisation : Saint-Denis
  • Année de construction : 2025
  • Aucune procédure n'est en cours

Géorisques

Les informations sur les risques auxquels ce bien est exposé sont disponibles sur le site Géorisques. https://www.georisques.gouv.fr

Diagnostic de performance énergétique


  • Non soumis au DPE

  • Information non communiquée par l'annonceur

    2 019 €
    Appartement 106m2 à Saint-Denis
    En vente
    Achetez en toute confiance

    Appartement 106m2Saint-Denis

    location
    2 019 € CC**
    Publiée le 13/11/2025

    CDC HABITAT
  • Afficher le téléphone
  • ...

    Vous ne trouvez pas votre bonheur ?

    Confiez nous votre recherche
    En poursuivant votre navigation sur ce site, vous acceptez l'utilisation de cookies afin de vous proposer des services adaptés à votre profil. En savoir plus